For Sale By Auction | 11:00, 20 October 2021 | Lot 66

9 Salisbury Road, Lowestoft, Suffolk, NR33 0HB

Sold £140,000

  • End of Terrace House
  • 3 Bedrooms
  • Tenure: Freehold

Call the team on 01603 505 100 for more information

Auction Date

Wed 20/10/2021

Auction Time

11:00

Auction Venue

Livestream Auction

Extended hall entrance end terraced property in need of some updating

This larger than average end terraced property is situated on the south of the Suffolk seaside resort of Lowestoft. The property is in need of some modernisation however offers generous accommodation of three reception rooms and an extension added to the property offering a cloakroom and a great sized family kitchen opening onto the garden. Upstairs the property offers three bedrooms and family bathroom all leading off the landing. The property benefits from UPVC glazing and gas central heating. Side access leads to the south facing rear garden which has been hard landscaped and the decking is now tired and need replacement. At the bottom of the garden there is a brick workshop useful for storage.

Tenure

Freehold

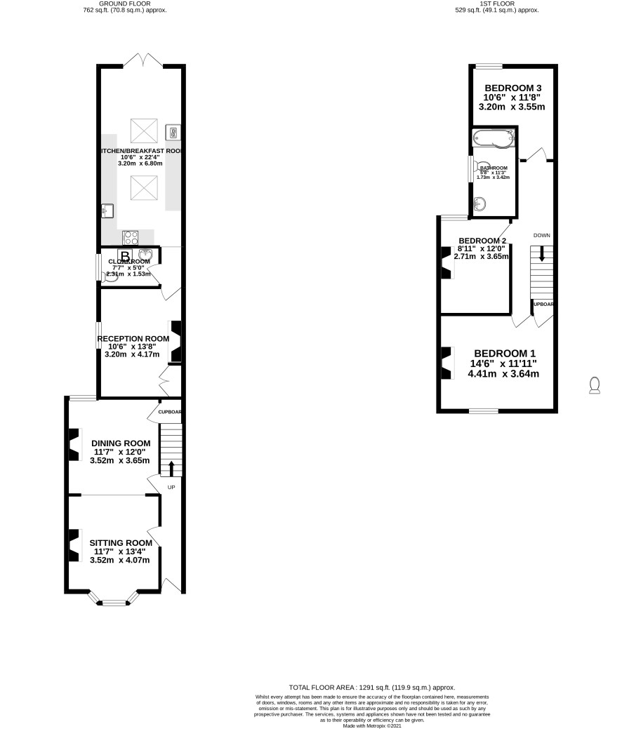
Ground Floor

Entrance hall, open plan sitting/dining room, third reception room, cloakroom, family kitchen/breakfast room

First Floor

Landing, three bedrooms, bathroom

Outside

Front walled garden with access to the side of the dwelling leading to a South facing garden which is in need of some attention and leads to a garage sized workshop with no vehicle access.

Viewings

Individual viewings can be arranged - the next are on Tuesday 12 Oct. APPOINTMENT ESSENTIAL - please call our Norwich office to book a viewing slot.

Energy Efficiency Rating (EPC)

Current Rating D

Services

Interested parties are requested to make their own enquiries to the relevant authorities as to the availability of services.

Local Authority

East Suffolk Council. Tel: 0333 016 2000

Solicitors

Norton Legal, Unit 8 Beech Avenue, Taverham, Norwich, NR8 6HW, Ref: Tracy Guest, Tel: (01603) 864331

Important Notice to Prospective Buyers:

We draw your attention to the Special Conditions of Sale within the Legal Pack, referring to other charges in addition to the purchase price which may become payable. Such costs may include Search Fees, reimbursement of Sellers costs and Legal Fees, and Transfer Fees amongst others.

Additional Fees

Buyer's Premium - £960 inc VAT payable on exchange of contracts.

Administration Charge - 0.3% inc VAT of the purchase price, subject to a minimum of £1140 inc VAT, payable on exchange of contracts.

Disbursements - Please see the legal pack for any disbursements listed that may become payable by the purchaser on completion.

View Larger Map

Disclaimer: The map preview provided above is for general guidance only and may not accurately reflect the exact location or surrounding buildings. Prospective buyers and interested parties are strongly advised to independently verify the precise location and surroundings before bidding.