For Sale By Auction | 11:00, 20 October 2021 | Lot 4

58 Avenue Road, Norwich, Norfolk, NR2 3HN

Sold £190,000

  • Terraced House
  • 2 Bedrooms
  • Tenure: Leasehold

Call the team on 01603 505 100 for more information

Auction Date

Wed 20/10/2021

Auction Time

11:00

Auction Venue

Livestream Auction

Mid terrace house located in the golden triangle requiring complete refurbishment

This two bedroom property has been in the same family for around sixty years, and is now to be sold with vacant possession. It is conveniently situated around a mile south west of the city centre. It is located in a sought after area close to a range of services and amenities. It now needs a program or repair and improvement to realise its full potential and would be an ideal project for an owner occupier, builder or investor. A rare opportunity.

Tenure

Leasehold

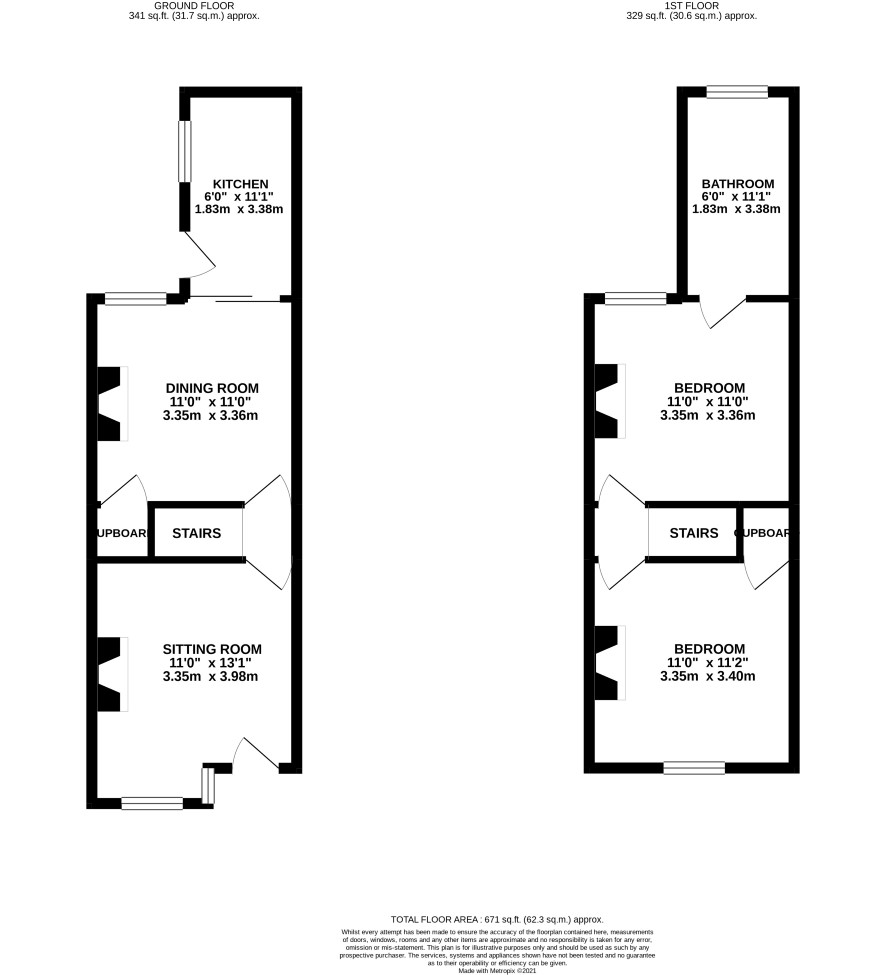
Ground Floor

Sitting room, dining room, kitchen

First Floor

Two bedrooms, bathroom

Outside

W.C, coal shed, rear garden in need of attention, small front garden.

Energy Efficiency Rating (EPC)

Current Rating E

Services

Interested parties are requested to make their own enquiries to the relevant authorities as to the availability of services.

Local Authority

Norwich City Council. Tel: 0344 980 3333

Solicitors

Cozens-Hardy LLP, Castle Chambers, Opie Street, Norwich, NR1 3DP, Ref: Charlotte Hunter, Tel: 01603 625231

Important Notice to Prospective Buyers:

We draw your attention to the Special Conditions of Sale within the Legal Pack, referring to other charges in addition to the purchase price which may become payable. Such costs may include Search Fees, reimbursement of Sellers costs and Legal Fees, and Transfer Fees amongst others.

Additional Fees

Administration Charge - 0.3% inc VAT of the purchase price, subject to a minimum of £1140 inc VAT, payable on exchange of contracts.

Disbursements - Please see the legal pack for any disbursements listed that may become payable by the purchaser on completion.

View Larger Map

Disclaimer: The map preview provided above is for general guidance only and may not accurately reflect the exact location or surrounding buildings. Prospective buyers and interested parties are strongly advised to independently verify the precise location and surroundings before bidding.