For Sale By Auction | 11:00, 20 October 2021 | Lot 55

Former Methodist Church, The Street, Little Clacton, Clacton-On-Sea, Essex, CO16 9LG

Sold £160,000

  • Commercial Property
  • Tenure: Freehold

Call the team on 01473 558 888 for more information

Auction Date

Wed 20/10/2021

Auction Time

11:00

Auction Venue

Livestream Auction

An attractive Victorian former Methodist Church with off road parking and conversion potential (STPP)

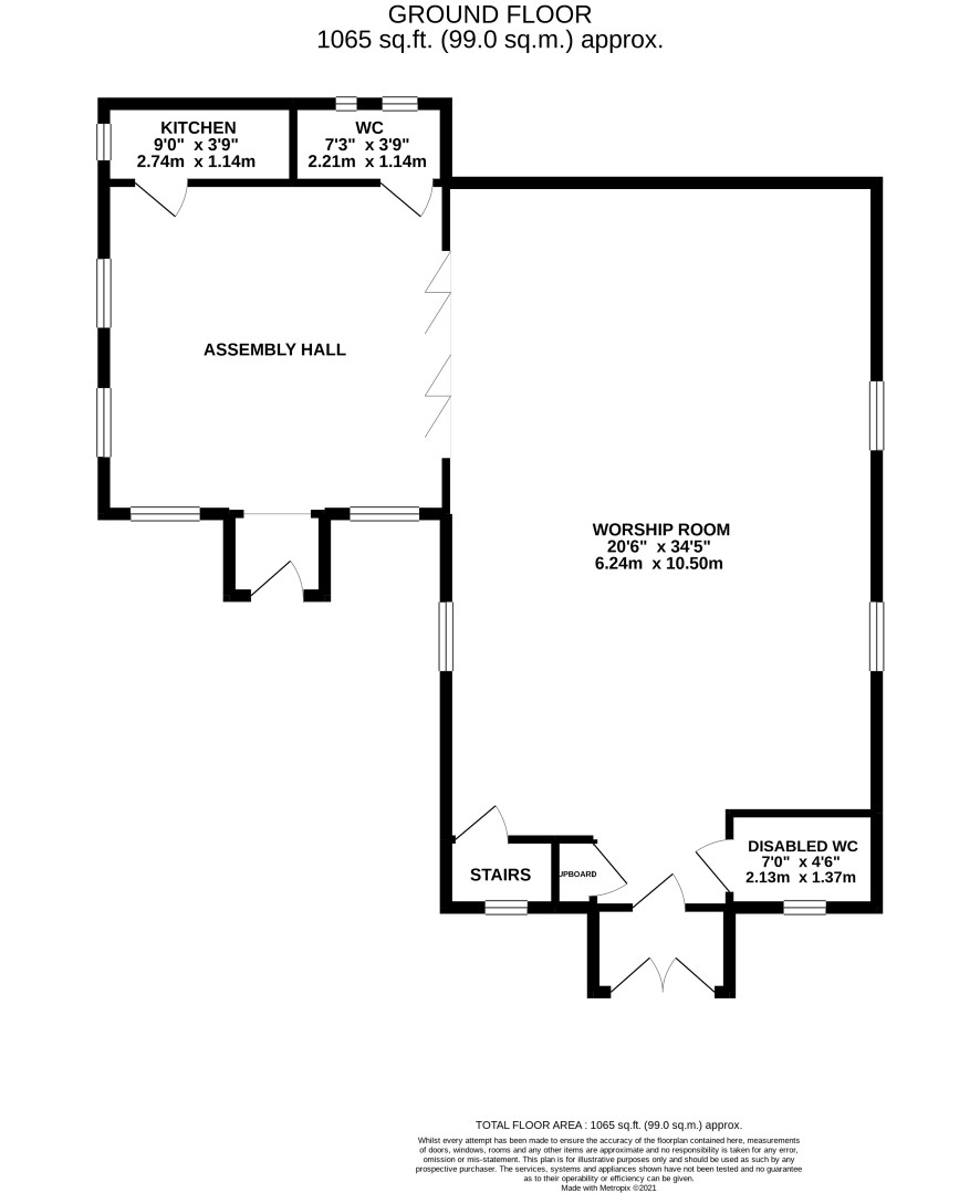
Constructed in 1851, this Methodist Church is now redundant and offers tremendous potential for alternative commercial or residential use, subject to Planning Permission. The village of Little Clacton is located some 3 and 13 miles from Clacton On Sea and Colchester respectively and is served by a number of outlets for everyday needs. The property extends to around 1,050 sq ft (97.5 sq m) and is divided into two principle areas, a large worship room with a first floor gallery and an Assembly Hall, these are served by a small kitchen and two WCs. Outside is tandem parking space for two or three cars which could allow for the creation of a small courtyard garden. The property is not Listed and VAT is not applicable.

Tenure

Freehold

Viewing

Viewings have been scheduled for Friday1st and Thursday 14th October. BOOKING AN APPOINTMENT IS ESSENTIAL. Please contact the Ipswich office to be allocated the next available slot on your preferred date.

Services

Interested parties are requested to make their own enquiries to the relevant authorities as to the availability of services.

Local Authority

Tendring District Council. Tel: 01255 686868

Solicitors

Smith & Co Solicitors, Clarence House, 21 St Margarets Green, Ipswich, IP4 2BN, Ref: Emma Barnard, Tel: 01473 228019

Important Notice to Prospective Buyers:

We draw your attention to the Special Conditions of Sale within the Legal Pack, referring to other charges in addition to the purchase price which may become payable. Such costs may include Search Fees, reimbursement of Sellers costs and Legal Fees, and Transfer Fees amongst others.

Additional Fees

Buyer's Premium - £900 inc VAT payable on exchange of contracts.

Administration Charge - 0.3% inc VAT of the purchase price, subject to a minimum of £1140 inc VAT, payable on exchange of contracts.

Disbursements - Please see the legal pack for any disbursements listed that may become payable by the purchaser on completion.

View Larger Map

Disclaimer: The map preview provided above is for general guidance only and may not accurately reflect the exact location or surrounding buildings. Prospective buyers and interested parties are strongly advised to independently verify the precise location and surroundings before bidding.