For Sale By Auction | 11:00, 20 October 2021 | Lot 31

14/14A Tacket Street, Ipswich, Suffolk, IP4 1AY

Sold £180,000

  • Mixed Use
  • Tenure: Freehold

Call the team on 01473 558 888 for more information

Auction Date

Wed 20/10/2021

Auction Time

11:00

Auction Venue

Livestream Auction

A mixed use freehold investment in a prime town centre location and producing a strong yield.

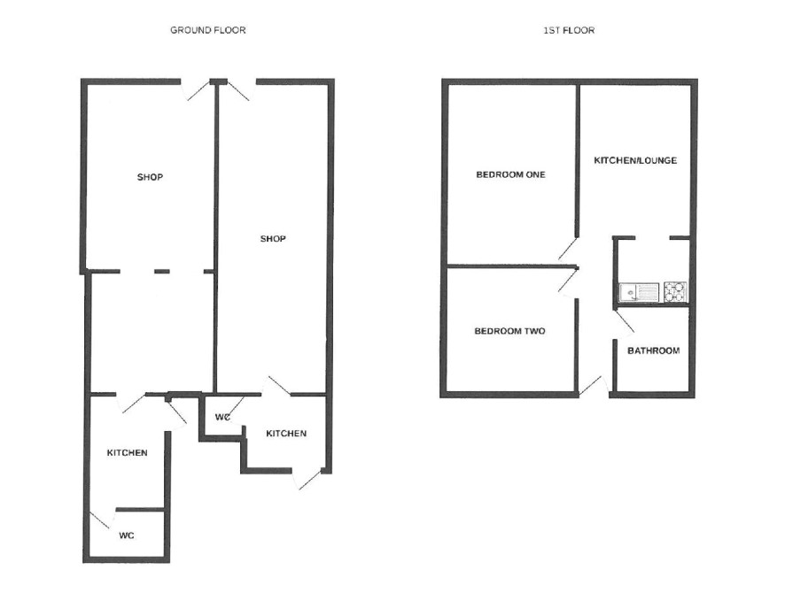
This property has a prominent town centre location with major retailers Sainsburys and Wilco just across the road. The property comprises two retail units totalling around 700 sq ft (65 sq m) with an independently accessed 2 bedroom flat above which would benefit from some improvement. To the rear is a Grade II LIsted former smoke house, a lean-to and access to a small cellar. 14 Tacket Street which trades as a barbers together with the flat above are let on a 10 year lease from June 2016 at a current rent of £14,000 per annum and 14a Tacket Street which trades as a beauty salon is let on a 5 year lease from February 2019 at a current rent of £5,500 per annum. With the annual income equating to nearly 11.5% of the low Guide this has to be an excellent investment opportunity.

Tenure

Freehold

Viewing

By appointment, please contact the Ipswich office.

Energy Efficiency Rating (EPC)

Current Rating 14 = E, 14a = D

Services

Interested parties are requested to make their own enquiries to the relevant authorities as to the availability of services.

Local Authority

Ipswich Borough Council. Tel: 01473 432000

Solicitors

Birketts, Providence House, 141-145 Princes St, Ipswich, IP1 1QJ, Ref: Stuart Raven, Tel: 01473 406324

Important Notice to Prospective Buyers:

We draw your attention to the Special Conditions of Sale within the Legal Pack, referring to other charges in addition to the purchase price which may become payable. Such costs may include Search Fees, reimbursement of Sellers costs and Legal Fees, and Transfer Fees amongst others.

Additional Fees

Buyer's Premium - £900 inc VAT payable on exchange of contracts.

Administration Charge - 0.3% inc VAT of the purchase price, subject to a minimum of £1140 inc VAT, payable on exchange of contracts.

Disbursements - Please see the legal pack for any disbursements listed that may become payable by the purchaser on completion.

View Larger Map

Disclaimer: The map preview provided above is for general guidance only and may not accurately reflect the exact location or surrounding buildings. Prospective buyers and interested parties are strongly advised to independently verify the precise location and surroundings before bidding.