For Sale By Auction | 11:00, 08 December 2021 | Lot 61

65 York Road, Great Yarmouth, Norfolk, NR30 2ND

Sold £116,000

  • Terraced House
  • 4 Bedrooms
  • Tenure: Freehold

Call the team on 01603 505 100 for more information

Auction Date

Wed 08/12/2021

Auction Time

11:00

Auction Venue

Livestream Auction

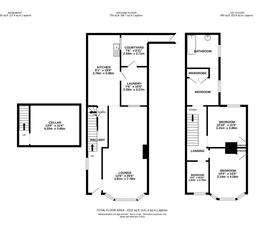
A four bedroom hall entrance terrace house requiring modernisation

This bay fronted terrace house has been tenanted for a number of years but is now vacant and in need of a full program of modernisation and redecoration. The property has a spacious through lounge dining room, useful cellar and four bedrooms with three having separate access off the first floor landing. The property would be ideal for builder to modernise or investor to create a significant rental income. The house is within walking distance of the town centre shops and sea front.

Tenure

Freehold

Ground Floor

Hall, lounge/diner, kitchen, utility room, cellar

First Floor

Landing, 3/4 bedrooms, bathroom

Outside

Small rear courtyard with private pedestrian access to side street.

Viewings

Open Viewings are being arranged and the next are on Wednesday 24 November. Please call our Norwich office to book an appointment slot.

Energy Efficiency Rating (EPC)

Current Rating E

Services

Interested parties are requested to make their own enquiries to the relevant authorities as to the availability of services.

Local Authority

Great Yarmouth Borough Council. Tel: 01493 856100

Solicitors

Bindman, 22 Front Street, Whickham, Newcastle Upon Tyne, NE164DT, Ref: Claire Stanton, Tel: 0191 432 4408

Important Notice to Prospective Buyers:

We draw your attention to the Special Conditions of Sale within the Legal Pack, referring to other charges in addition to the purchase price which may become payable. Such costs may include Search Fees, reimbursement of Sellers costs and Legal Fees, and Transfer Fees amongst others.

Additional Fees

Buyer's Premium - £420 inc VAT payable on exchange of contracts.

Administration Charge - 0.3% inc VAT of the purchase price, subject to a minimum of £1140 inc VAT, payable on exchange of contracts.

Disbursements - Please see the legal pack for any disbursements listed that may become payable by the purchaser on completion.

View Larger Map

Disclaimer: The map preview provided above is for general guidance only and may not accurately reflect the exact location or surrounding buildings. Prospective buyers and interested parties are strongly advised to independently verify the precise location and surroundings before bidding.