For Sale By Auction | 11:00, 08 December 2021 | Lot 66

63 Palgrave Road, Great Yarmouth, Norfolk, NR30 1QD

Sold £120,000

  • Terraced House
  • 3 Bedrooms
  • Tenure: Freehold

Call the team on 01603 505 100 for more information

Auction Date

Wed 08/12/2021

Auction Time

11:00

Auction Venue

Livestream Auction

Mid terraced three bedroom house in need of modernisation

This hall entrance mid terraced property is in need of modernisation, however offers larger than average accommodation with a third bedroom leading off the rear of bedroom two along with an original hallway which has been opened up into the sitting room. The property also benefits from a front and rear garden with scope for improvement.

Tenure

Freehold

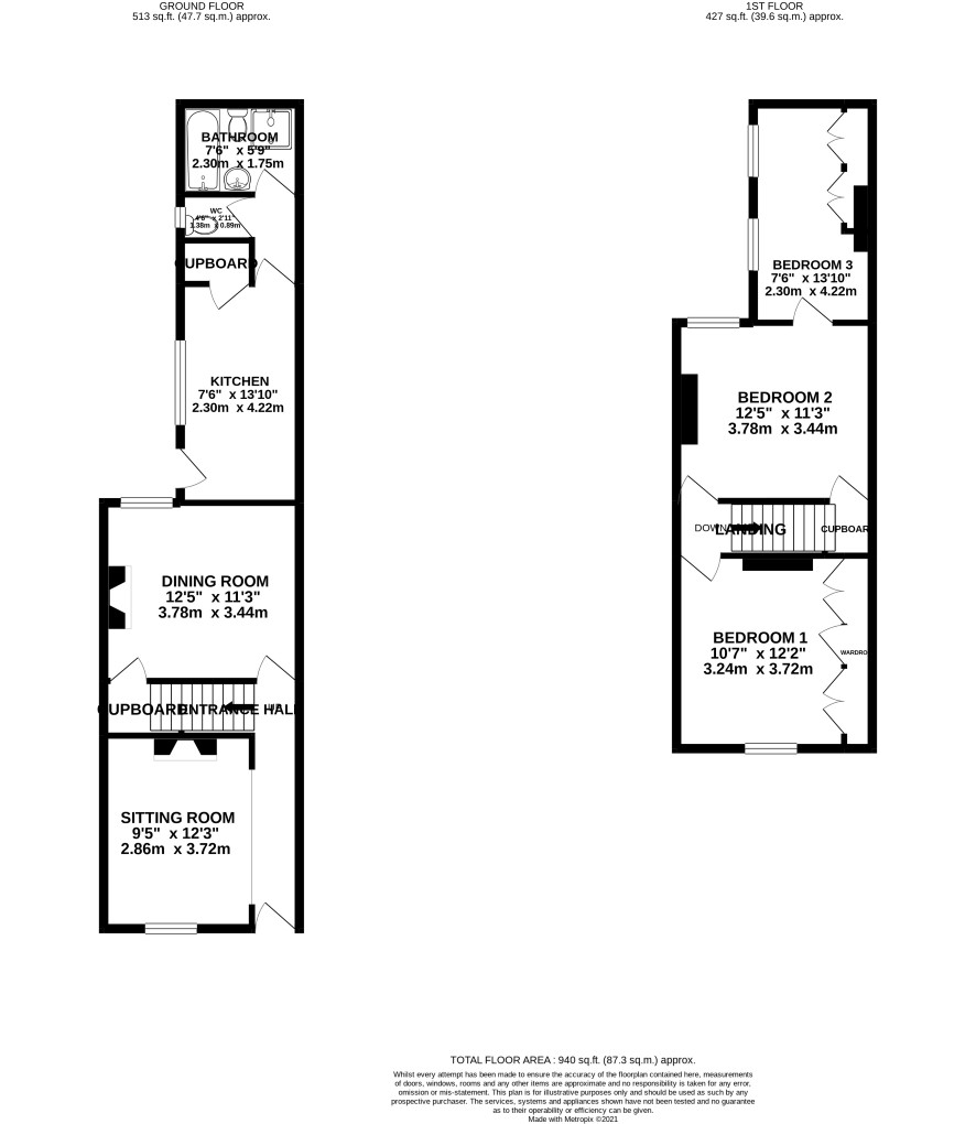
Ground Floor

Hall, sitting room, dining room, kitchen, bathroom with separate shower, separate w.c.

First Floor

Landing, two generous bedrooms with third bedroom leading off.

Outside

Front walled garden with gate to front entrance. Gate provides access to the rear garden with outside storage shed.

Viewings

Open viewings are being arranged and the next are Monday 6 December. To book an appointment please call the Norwich office.

Energy Efficiency Rating (EPC)

Current Rating E

Services

Interested parties are requested to make their own enquiries to the relevant authorities as to the availability of services.

Local Authority

Great Yarmouth Borough Council. Tel: 01493 856100

Solicitors

Norton Legal, Unit 8 Beech Avenue, Taverham, Norwich, NR8 6HW, Ref: Tracy Guest, Tel: (01603) 864331

Important Notice to Prospective Buyers:

We draw your attention to the Special Conditions of Sale within the Legal Pack, referring to other charges in addition to the purchase price which may become payable. Such costs may include Search Fees, reimbursement of Sellers costs and Legal Fees, and Transfer Fees amongst others.

Additional Fees

Buyer's Premium - £960 inc VAT payable on exchange of contracts.

Administration Charge - 0.3% inc VAT of the purchase price, subject to a minimum of £1140 inc VAT, payable on exchange of contracts.

Disbursements - Please see the legal pack for any disbursements listed that may become payable by the purchaser on completion.

View Larger Map

Disclaimer: The map preview provided above is for general guidance only and may not accurately reflect the exact location or surrounding buildings. Prospective buyers and interested parties are strongly advised to independently verify the precise location and surroundings before bidding.