Sold Prior | Lot 44

72-74 London Road, Long Sutton, Spalding, Lincolnshire, PE12 9ED

Sold Prior

  • Commercial Property
  • Tenure: Freehold

Call the team on 01733 889833 for more information

Auction Date

Wed 08/12/2021

Auction Time

11:00

Auction Venue

Livestream Auction

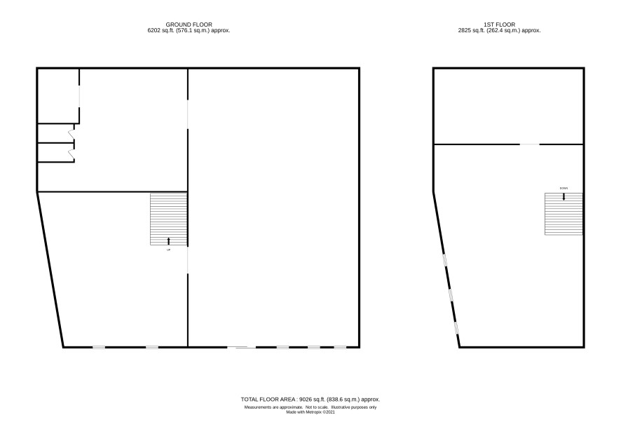
A vacant freehold premises approximately 8,900 sq. ft across two units

This former auction rooms is available with vacant possession and would be an excellent retail or showroom space. The building is situated on a prominent location on the approach to Long Sutton and within walking distance to the town centre. The premises is laid out over two floors with a main open plan showroom along with further rooms and W/Cs to the ground floor. On the first floor there are two further main rooms. Long Sutton is a market town with easy access to the A17 and offers a good selection of amenities and a regular bus service.

Tenure

Freehold

Ground Floor

Main open plan room, front room, store room, 2 x W/Cs and additional store rooms.

First Floor

Front and rear rooms

Outside

Parking

Energy Efficiency Rating (EPC)

Current Rating C

Services

Interested parties are requested to make their own enquiries to the relevant authorities as to the availability of services.

Local Authority

South Holland District Council. Tel: 01775 761161

Solicitors

Straw & Pearce Solicitors, 18 Rectory Place, Loughborough, LE11 1UU, Ref: Peter Baker, Tel: 01509632087

Important Notice to Prospective Buyers:

We draw your attention to the Special Conditions of Sale within the Legal Pack, referring to other charges in addition to the purchase price which may become payable. Such costs may include Search Fees, reimbursement of Sellers costs and Legal Fees, and Transfer Fees amongst others.

Additional Fees

Buyer's Premium - £900 inc VAT payable on exchange of contracts.

Administration Charge - 0.3% inc VAT of the purchase price, subject to a minimum of £1140 inc VAT, payable on exchange of contracts.

Disbursements - Please see the legal pack for any disbursements listed that may become payable by the purchaser on completion.

View Larger Map

Disclaimer: The map preview provided above is for general guidance only and may not accurately reflect the exact location or surrounding buildings. Prospective buyers and interested parties are strongly advised to independently verify the precise location and surroundings before bidding.