Sold Prior | Lot 36

275 Ramsey Road, Pondersbridge, Ramsey, Huntingdon, Cambridgeshire, PE26 2TW

Sold Prior

  • Semi-Detached House
  • 2 Bedrooms
  • Tenure: Freehold

Call the team on 01733 889833 for more information

Auction Date

Wed 09/02/2022

Auction Time

11:00

Auction Venue

Livestream Auction

A semi detached two bedroom house backing onto fields in need of building work

This property offers good sized accommodation with two reception rooms, kitchen and a ground floor bathroom. Two bedrooms are located on the first floor with rural views at the rear. Any intending purchaser can access a structural engineers report within the legal pack. Ideal as a investment this property is offered with vacant possession. Pondersbridge is located north of the market town of the market town of Ramsey with its shopping facilities. A main line rail link can be found at Whittlesey and Huntingdon.

Tenure

Freehold

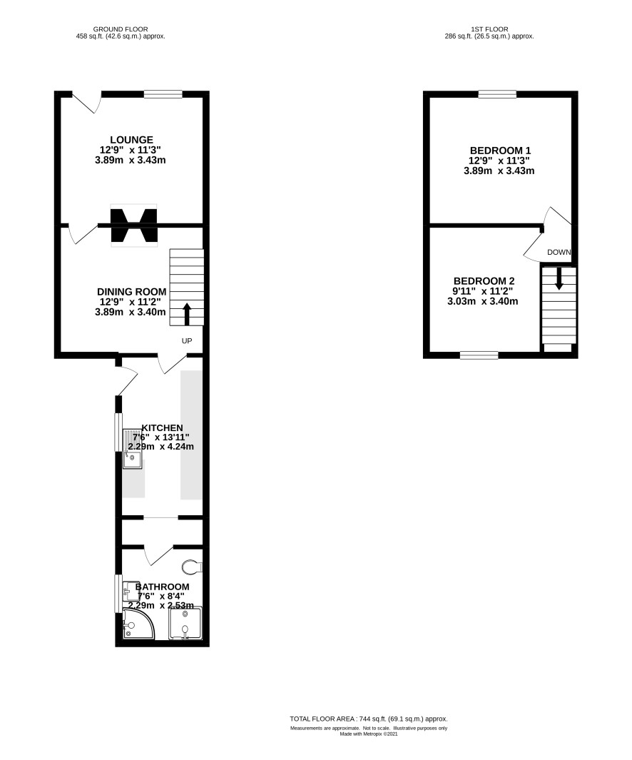
Ground Floor

Lounge, dining room, kitchen and a bathroom

First Floor

Two bedrooms

Outside

Parking to front and gardens at rear with field views.

Energy Efficiency Rating (EPC)

Current Rating F

Services

Interested parties are requested to make their own enquiries to the relevant authorities as to the availability of services.

Local Authority

Huntingdonshire District Council. Tel: 01480 388388

Solicitors

Buckles Solicitors, Grant House, 101 Bourges Boulevard, Peterborough, PE1 1NG, Ref: Andrew Jackson, Tel: 01733 888813

Important Notice to Prospective Buyers:

We draw your attention to the Special Conditions of Sale within the Legal Pack, referring to other charges in addition to the purchase price which may become payable. Such costs may include Search Fees, reimbursement of Sellers costs and Legal Fees, and Transfer Fees amongst others.

Additional Fees

Buyer's Premium - £600 inc VAT payable on exchange of contracts.

Administration Charge - 0.3% inc VAT of the purchase price, subject to a minimum of £1140 inc VAT, payable on exchange of contracts.

Disbursements - Please see the legal pack for any disbursements listed that may become payable by the purchaser on completion.

View Larger Map

Disclaimer: The map preview provided above is for general guidance only and may not accurately reflect the exact location or surrounding buildings. Prospective buyers and interested parties are strongly advised to independently verify the precise location and surroundings before bidding.