For Sale By Auction | 11:00, 09 February 2022 | Lot 6

3 Stuart Road, Norwich, Norfolk, NR1 2BY

Sold £199,500

  • End of Terrace House
  • 2 Bedrooms
  • Tenure: Freehold

Call the team on 01603 505 100 for more information

Auction Date

Wed 09/02/2022

Auction Time

11:00

Auction Venue

Livestream Auction

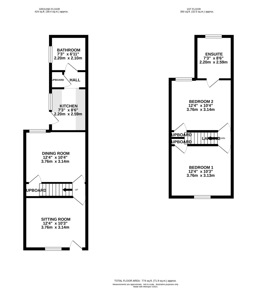
Victorian end terraced house in need of some improvements, located close to the centre of Norwich.

This property is currently vacant and is in need of some updating, however would make a perfect investment property and could achieve around £850pcm. The property offers two bedroom accommodation, one with en-suite, and on the ground floor two reception rooms, kitchen and bathroom. Outside the is a bisected garden typical of a terraced property.

Tenure

Freehold

Ground floor

Sitting room, dining room, kitchen, bathroom.

First floor

Landing, two bedrooms, one with en-suite.

Outside

Small front walled garden provides access to the entrance, Rear access via side passageway. The rear garden is paved and offers a storage shed.

Viewings:

Open day viewings are booked for: Tuesday, 11th January Thursday, 20th January Wednesday, 26th January Friday, 4th February Please call the Norwich office to book an appointment.

Energy Efficiency Rating (EPC)

Current Rating D

Services

Interested parties are requested to make their own enquiries to the relevant authorities as to the availability of services.

Local Authority

Norwich City Council. Tel: 0344 980 3333

Solicitors

Norton Legal, Unit 8 Beech Avenue, Taverham, Norwich, NR8 6HW, Ref: Tracy Guest, Tel: (01603) 864331

Important Notice to Prospective Buyers:

We draw your attention to the Special Conditions of Sale within the Legal Pack, referring to other charges in addition to the purchase price which may become payable. Such costs may include Search Fees, reimbursement of Sellers costs and Legal Fees, and Transfer Fees amongst others.

Additional Fees

Buyer's Premium - £960 inc VAT payable on exchange of contracts.

Administration Charge - 0.3% inc VAT of the purchase price, subject to a minimum of £1140 inc VAT, payable on exchange of contracts.

Disbursements - Please see the legal pack for any disbursements listed that may become payable by the purchaser on completion.

View Larger Map

Disclaimer: The map preview provided above is for general guidance only and may not accurately reflect the exact location or surrounding buildings. Prospective buyers and interested parties are strongly advised to independently verify the precise location and surroundings before bidding.