Postponed | Lot 25

40 Queensway, Thetford, Norfolk, IP24 3DR

Postponed

  • End of Terrace House
  • 3 Bedrooms
  • Tenure: Freehold

Call the team on 01603 505 100 for more information

Auction Date

Wed 09/02/2022

Auction Time

11:00

Auction Venue

Livestream Auction

Recently refurbished three bedroom terrace house with potential off road parking

The ex local authority property is an end terrace of four, and is in excellent decorative order throughout. It benefits from gas fired central heating and double glazing.There is the potential for off road parking or to build a detached garage at the front. The property is of non standard construction, believed to be concrete framed. It is conveniently located opposite a bus stop and Diamond Academy primary school, and is only a mile south west of the town centre.

Tenure

Freehold

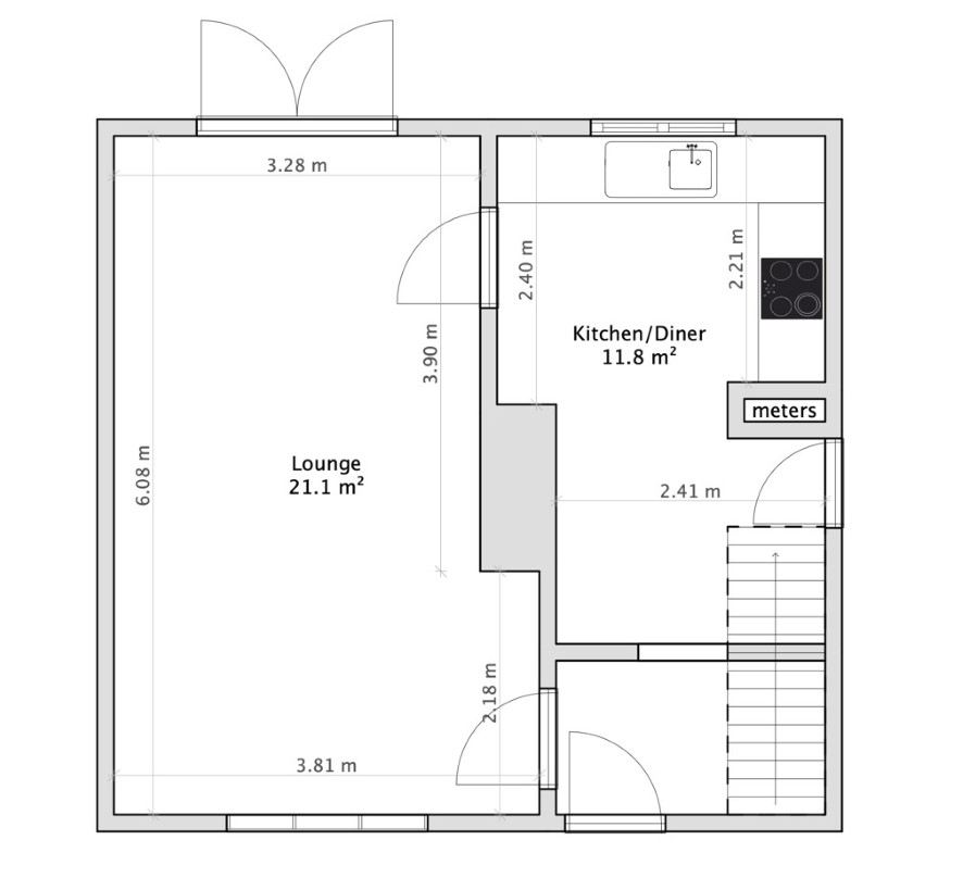
Ground Floor

Entrance hall, kitchen / dining room, sitting room

First Floor

Landing, three bedrooms, bathroom

Outside

Front and rear garden, rear outbuilding.

Viewings

Open days are being arranged, the next is Tuesday 15 February - please call the Norwich office to book an appointment on this viewing day.

Energy Efficiency Rating (EPC)

Current Rating D

Services

Interested parties are requested to make their own enquiries to the relevant authorities as to the availability of services.

Local Authority

Breckland Council. Tel: 01362 656870

Solicitors

D & S Legal, FF10, Heybridge Business Centre, 110 The Causeway, Maldon, CM9 4ND, Ref: Dean Alexander, Tel: 01621 710212

Important Notice to Prospective Buyers:

We draw your attention to the Special Conditions of Sale within the Legal Pack, referring to other charges in addition to the purchase price which may become payable. Such costs may include Search Fees, reimbursement of Sellers costs and Legal Fees, and Transfer Fees amongst others.

Additional Fees

Buyer's Premium - £600 inc VAT payable on exchange of contracts.

Administration Charge - 0.3% inc VAT of the purchase price, subject to a minimum of £1140 inc VAT, payable on exchange of contracts.

Disbursements - Please see the legal pack for any disbursements listed that may become payable by the purchaser on completion.

View Larger Map

Disclaimer: The map preview provided above is for general guidance only and may not accurately reflect the exact location or surrounding buildings. Prospective buyers and interested parties are strongly advised to independently verify the precise location and surroundings before bidding.