For Sale By Auction | 11:00, 09 February 2022 | Lot 13

252 St. Peters Street, Lowestoft, Suffolk, NR32 2NA

Sold £96,000

  • Terraced House
  • 2 Bedrooms
  • Tenure: Freehold

Call the team on 01603 505 100 for more information

Auction Date

Wed 09/02/2022

Auction Time

11:00

Auction Venue

Livestream Auction

Two bedroom terrace house requiring updating, ideal for refurbishment or investment

This vacant terrace house has been tenanted for many years but is now ready for a program of updating and redecoration. The property has part double glazing and benefits from two reception rooms and two bedrooms and a bathroom off the first floor landing. There is a well proportioned private rear garden and is within close proximity to Lowestoft College. Documented and fully supervised improvement works, including the complete rebuilding of the rear extension, was carried out in 1985. Documents available for inspection at the Auctioneer's Office - please call the Norwich Office to make an appointment to view.

Tenure

Freehold

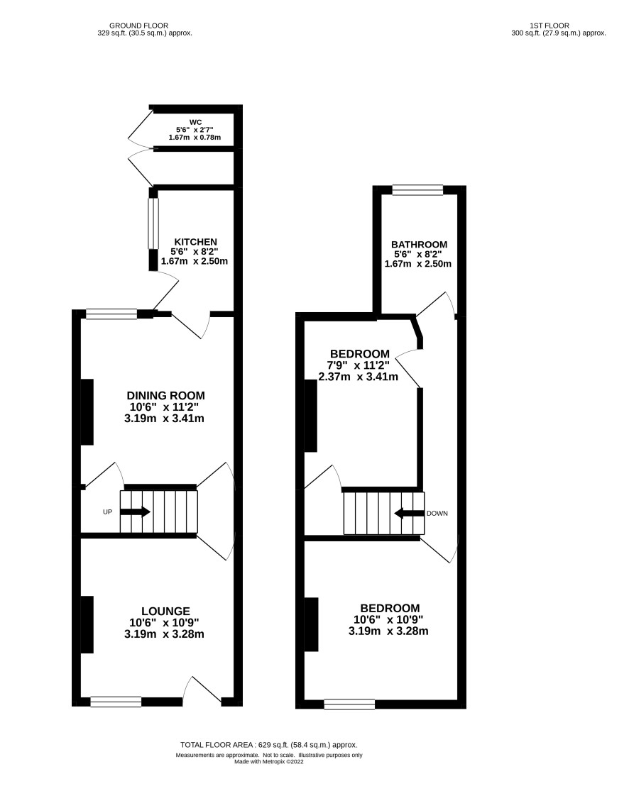
Ground Floor

Lounge, dining room, kitchen

First Floor

Landing, 2 bedrooms, bathroom

Outside

Outside w.c. and store, small front garden, well proportioned rear garden.

Viewings

Open Days are planned and the final day is Monday 7 February. Please call the Norwich office to book a specific time appointment.

Energy Efficiency Rating (EPC)

Current Rating E

Services

Interested parties are requested to make their own enquiries to the relevant authorities as to the availability of services.

Local Authority

Waveney District Council. Tel: 01502 562111

Solicitors

Goodwin Cowley, 3 Regent Road, Lowestoft, NR32 1PA, Ref: Esther Tan, Tel: 01502532700

Important Notice to Prospective Buyers:

We draw your attention to the Special Conditions of Sale within the Legal Pack, referring to other charges in addition to the purchase price which may become payable. Such costs may include Search Fees, reimbursement of Sellers costs and Legal Fees, and Transfer Fees amongst others.

Additional Fees

Buyer's Premium - £600 inc VAT payable on exchange of contracts.

Administration Charge - 0.3% inc VAT of the purchase price, subject to a minimum of £1140 inc VAT, payable on exchange of contracts.

Disbursements - Please see the legal pack for any disbursements listed that may become payable by the purchaser on completion.

View Larger Map

Disclaimer: The map preview provided above is for general guidance only and may not accurately reflect the exact location or surrounding buildings. Prospective buyers and interested parties are strongly advised to independently verify the precise location and surroundings before bidding.