Sold Prior | Lot 51

The Collingwood, 25 Princes Road, Great Yarmouth, Norfolk, NR30 2DG

Sold Prior

  • Terraced House
  • 10 Bedrooms
  • Tenure: Freehold

Call the team on 01603 505 100 for more information

Auction Date

Wed 09/02/2022

Auction Time

11:00

Auction Venue

Livestream Auction

Guest House offering 10 bedrooms situated in the popular seaside resort of Great Yarmouth

The Collingswood is an impressive building with an abundance of original features. Situated close to the sea within the well known seaside resort of Great Yarmouth on the east coast of Norfolk. The property offers spacious accommodation over four floors and is in very good order. Ready for business as soon as sale has completed the guesthouse has ten bedrooms, eight of which have en-suite facilities. A couple of these rooms could benefit from some redecoration however the rest are in superb order. One of rooms to the rear has its own en-suite and kitchenette with could serve as managers living accommodation. The property offers a communal lounge and dining room on the ground floor and is served by a kitchen and utility. There is a small courtyard with fire exit to the rear along with the hidden gem of a double garage offering parking.

Tenure

Freehold

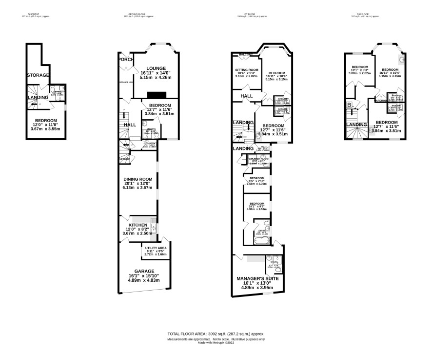
Basement

Hall, double bedroom, shower room

Ground Floor

Front porch, hall, lounge, dining room, w.c., kitchen, garage with utility area sectioned off.

First Floor - Front Section

Family room (hall, sitting room, double bedroom with en-suite), double bedroom with en-suite.

First Floor - Rear Section

Landing, double bedroom, shower room, double bedroom with en-suite bathroom. Large double bedroom with en-suite and kitchenette ideal for live in manager. Fire exit off landing

Second Floor

Landing, two double bedrooms both with en-suite and double bedroom without.

Outside

Gate entrance leads to front and provides a small garden area. To the rear of the building there is a double garage with roller doors and a small courtyard (housing the fire escape) providing a small outside space.

Viewing

Individual viewings can be arranged - the next are Wednesday, 19th January APPOINTMENT ESSENTIAL - please call the Norwich Office to arrange the next available slot on the viewing day

Energy Efficiency Rating (EPC)

Current Rating C

Services

Interested parties are requested to make their own enquiries to the relevant authorities as to the availability of services.

Local Authority

Great Yarmouth Borough Council. Tel: 01493 856100

Solicitors

England & Co, 137 Bells Road, Gorleston, Great Yarmouth, NR31 6AG, Ref: Chelsea Matthews, Tel: 01493 604990

Important Notice to Prospective Buyers:

We draw your attention to the Special Conditions of Sale within the Legal Pack, referring to other charges in addition to the purchase price which may become payable. Such costs may include Search Fees, reimbursement of Sellers costs and Legal Fees, and Transfer Fees amongst others.

Additional Fees

Buyer's Premium - £960 inc VAT payable on exchange of contracts.

Administration Charge - 0.3% inc VAT of the purchase price, subject to a minimum of £1140 inc VAT, payable on exchange of contracts.

Disbursements - Please see the legal pack for any disbursements listed that may become payable by the purchaser on completion.

View Larger Map

Disclaimer: The map preview provided above is for general guidance only and may not accurately reflect the exact location or surrounding buildings. Prospective buyers and interested parties are strongly advised to independently verify the precise location and surroundings before bidding.