Postponed | Lot 30

33 Norwich Road, Wisbech, Cambridgeshire, PE13 2AD

Postponed

  • Terraced House
  • 4 Bedrooms
  • Tenure: Freehold

Call the team on 01733 889833 for more information

Auction Date

Wed 09/02/2022

Auction Time

11:00

Auction Venue

Livestream Auction

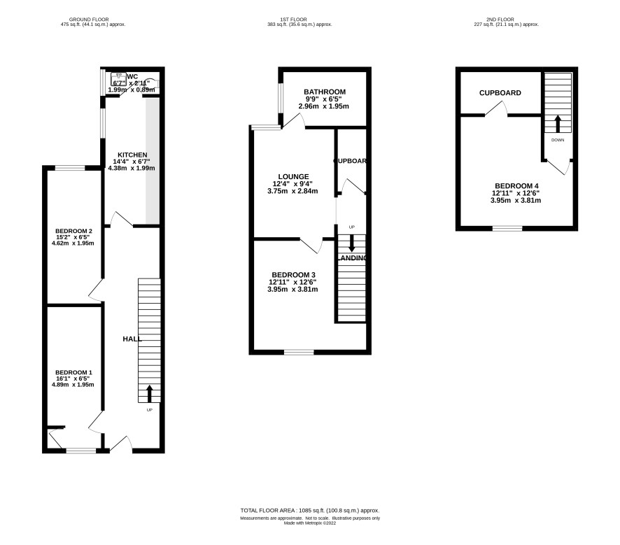
A three storey four bedroom terrace house with an income of £24,000 pa.

An opportunity to purchase a fully occupied HMO with an income of £24,000 pa. The property offers two bedrooms, kitchen and W.C. on the ground floor. A bedroom, lounge and bathroom on the first floor and afurther bedroom on the second floor. There is a small rear yard. The market town of Wisbech is between March and Kings Lynn both offering rail links into Cambridge and London. The town offers shopping, recreational facilities and the A47 linking to Kings Lynn and Peterborough.

Tenure

Freehold

Ground Floor

Hall, two bedrooms, kitchen, W.C.

First Floor

Bedroom, lounge, bathroom.

Second Floor

Bedroom.

Outside

Small yard.

Viewings

Please call the Auctioneer 01733 889833.

Energy Efficiency Rating (EPC)

Current Rating E

Services

Interested parties are requested to make their own enquiries to the relevant authorities as to the availability of services.

Local Authority

Fenland District Council. Tel: 01354 654321

Solicitors

Bindman, 22 Front Street, Whickham, Newcastle Upon Tyne, NE164DT, Ref: Claire Stanton, Tel: 0191 432 4408

Important Notice to Prospective Buyers:

We draw your attention to the Special Conditions of Sale within the Legal Pack, referring to other charges in addition to the purchase price which may become payable. Such costs may include Search Fees, reimbursement of Sellers costs and Legal Fees, and Transfer Fees amongst others.

Additional Fees

Buyer's Premium - £500 inc VAT payable on exchange of contracts.

Administration Charge - 0.3% inc VAT of the purchase price, subject to a minimum of £1140 inc VAT, payable on exchange of contracts.

Disbursements - Please see the legal pack for any disbursements listed that may become payable by the purchaser on completion.

View Larger Map

Disclaimer: The map preview provided above is for general guidance only and may not accurately reflect the exact location or surrounding buildings. Prospective buyers and interested parties are strongly advised to independently verify the precise location and surroundings before bidding.