Sold Prior | Lot 47

221 Beccles Road, Gorleston, Great Yarmouth, Norfolk, NR31 8BZ

Sold Prior

  • Detached House
  • Tenure: Freehold

Call the team on 01603 505 100 for more information

Auction Date

Wed 09/02/2022

Auction Time

11:00

Auction Venue

Livestream Auction

Former veterinary hospital with planning permission to convert into four residential units with off road parking

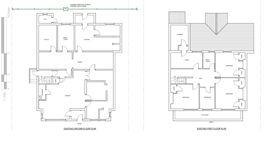
A development opportunity comprising a double fronted commercial property with full planning permission to convert the existing building into three, two bedroom flats, and one, two bedroom maisonette. Work has already started including significant works to the top floor and roof. This unfinished project would suit a builder / developer. Whilst planning is in place for four units there are other opportunities for the building and its large plot subject to the necessary consents. Planning permission was granted on 26th January 2021 for the conversion of ex-veterinary hospital into four flats and proposed rear extension and loft conversion. Reference: 06/20/0595/F. Further details including plans can be found on the public access website of Great Yarmouth Borough Council, www.great-yarmouth.gov.uk/planning. The property was taken out of the rating list last year and so no rates are payable.

Tenure

Freehold

Proposed Acommodation

Front Flat 1: 105.7 sq/m Ground floor: kitchen, living room, bathroom, two bedrooms

Rear Flat 2: 67.5 sq/m Ground floor: kitchen / living room, bathroom, two bedrooms

Flat 3: 60.7 sq/m First floor: kitchen / living room, two bedrooms, bathroom

Maisonette 4: 66.1 sq/m First floor: kitchen / living room Second floor: two bedrooms, shower room

Outside: 0.2 acre site comprising front driveway, rear garden and off road parking, cycle and bin storage

Energy Efficiency Rating (EPC)

Current Rating C

Services

Interested parties are requested to make their own enquiries to the relevant authorities as to the availability of services.

Local Authority

Great Yarmouth Borough Council. Tel: 01493 856100

Solicitors

Ninos Simon, Spector Constant & Williams, 4th Floor, 75 Wells Street, London, W1T 3QH, Tel: 020 7269 5120

Important Notice to Prospective Buyers:

We draw your attention to the Special Conditions of Sale within the Legal Pack, referring to other charges in addition to the purchase price which may become payable. Such costs may include Search Fees, reimbursement of Sellers costs and Legal Fees, and Transfer Fees amongst others.

Additional Fees

Administration Charge - 0.3% inc VAT of the purchase price, subject to a minimum of £1140 inc VAT, payable on exchange of contracts.

Disbursements - Please see the legal pack for any disbursements listed that may become payable by the purchaser on completion.

View Larger Map

Disclaimer: The map preview provided above is for general guidance only and may not accurately reflect the exact location or surrounding buildings. Prospective buyers and interested parties are strongly advised to independently verify the precise location and surroundings before bidding.