For Sale By Auction | 11:00, 04 May 2022 | Lot 39

Goldings Garage, 8 Park Lane, Newmarket, Suffolk CB8 8AX

Sold £375,000

  • Residential Development
  • Tenure: Freehold

Call the team on 01733 889833 for more information

Auction Date

Wed 04/05/2022

Auction Time

11:00

Auction Venue

Livestream Auction

Goldings Garage is located in the centre of the racing town - ideal as a development site with the necessary planning permission

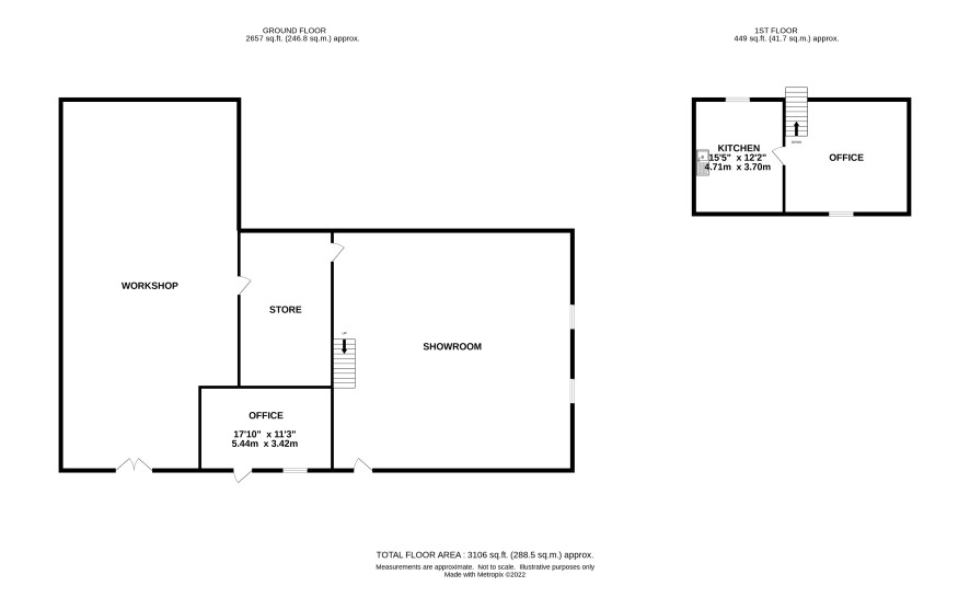
The garage is located just off Newmarket's high street overlooking All Saints Church in Park Lane. The current owners have carried out a contamination report available with the legal pack on our website. The current garage comprises a workshop, store, office, showroom and a first floor office and a kitchen. Newmarket offers a mixture of shopping and recreational facilities with a rail link into Cambridge and Bury St Edmunds.

Tenure

Freehold

Ground Floor

Workshop, store, office and showroom

First Floor

An office and kitchen.

Note

The property will be sold with vacant possession and the building will be empty i.e. none of the contents currently shown in the photos will be included in the sale.

Energy Efficiency Rating (EPC)

Current Rating D

Services

Interested parties are requested to make their own enquiries to the relevant authorities as to the availability of services.

Local Authority

West Suffolk Council

Solicitors

Edmondson Hall, Ref: Anna Hall, Tel: 01638560556

Offered in association with

David Clark

Important Notice to Prospective Buyers:

We draw your attention to the Special Conditions of Sale within the Legal Pack, referring to other charges in addition to the purchase price which may become payable. Such costs may include Search Fees, reimbursement of Sellers costs and Legal Fees, and Transfer Fees amongst others.

Additional Fees

Administration Charge - 0.3% inc VAT of the purchase price, subject to a minimum of £1200 inc VAT, payable on exchange of contracts.

Disbursements - Please see the legal pack for any disbursements listed that may become payable by the purchaser on completion.

View Larger Map

Disclaimer: The map preview provided above is for general guidance only and may not accurately reflect the exact location or surrounding buildings. Prospective buyers and interested parties are strongly advised to independently verify the precise location and surroundings before bidding.