For Sale By Auction | 11:00, 04 May 2022 | Lot 7

128 Magdalen Street, Norwich, Norfolk NR3 1JD

Sold £120,000

  • Mixed Use
  • 1 Bedroom
  • Tenure: Freehold

Call the team on 01603 505 100 for more information

Auction Date

Wed 04/05/2022

Auction Time

11:00

Auction Venue

Livestream Auction

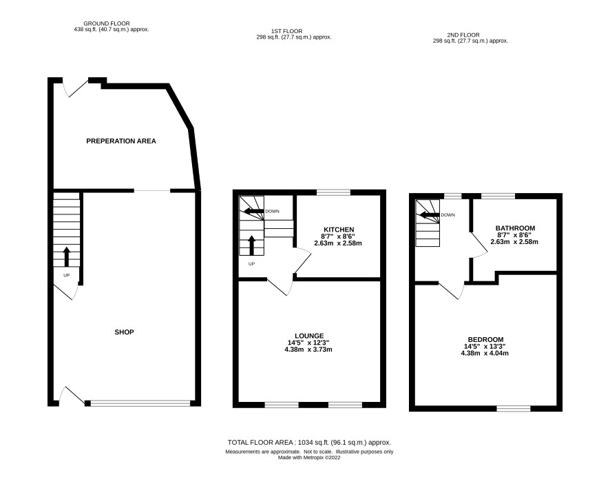
Vacant shop with two storey maisonette over

This former fishmongers freehold shop is now vacant and in need of improvement. The premises comprise of two rooms on the ground floor, a living room and kitchen on the first floor and a double bedroom and bathroom on the second floor. Ideal for investment or owner occupation. The property is located close to the Anglia Square shopping center and in a prominent main road position just north of the centre of Norwich.

Tenure

Freehold

Ground Floor

Retail shop, store/preparation area

First Floor

Landing, lounge, kitchen

Second Floor

Landing, bedroom, bathroom

Outside

Rear courtyard, store.

Viewings

Open viewings are planned and the next are on Wednesday 27 & Friday 29 April. To book an appointment please call the Norwich office.

Energy Efficiency Rating (EPC)

Current Rating E

Services

Interested parties are requested to make their own enquiries to the relevant authorities as to the availability of services.

Local Authority

Norwich City Council

Solicitors

EG Law, Ref: Marc Greig, Tel: 01508 486462

Important Notice to Prospective Buyers:

We draw your attention to the Special Conditions of Sale within the Legal Pack, referring to other charges in addition to the purchase price which may become payable. Such costs may include Search Fees, reimbursement of Sellers costs and Legal Fees, and Transfer Fees amongst others.

Additional Fees

Buyer's Premium - £600 inc VAT payable on exchange of contracts.

Administration Charge - 0.3% inc VAT of the purchase price, subject to a minimum of £1200 inc VAT, payable on exchange of contracts.

Disbursements - Please see the legal pack for any disbursements listed that may become payable by the purchaser on completion.

View Larger Map

Disclaimer: The map preview provided above is for general guidance only and may not accurately reflect the exact location or surrounding buildings. Prospective buyers and interested parties are strongly advised to independently verify the precise location and surroundings before bidding.