Postponed | Lot 56

34 & 36 Bassenhally Road, Whittlesey, Peterborough, Cambridgeshire PE7 1RN

Postponed

  • Detached Bungalow
  • 3 Bedrooms
  • Tenure: Freehold

Call the team on 01733 889833 for more information

Auction Date

Wed 15/06/2022

Auction Time

11:00

Auction Venue

Livestream Auction

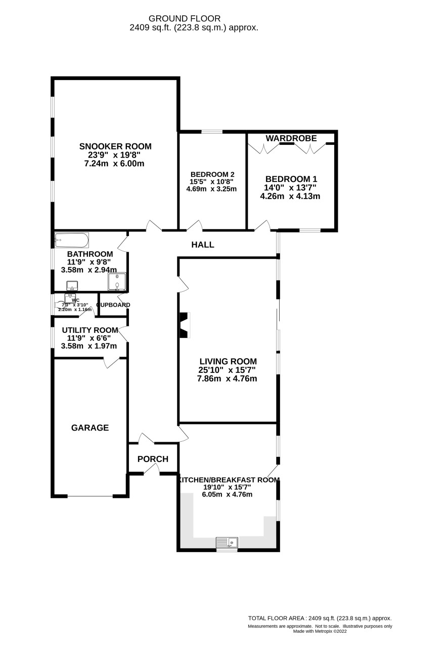
A detached 2400 sq ft bungalow with a separate detached derelict bungalow in the garden in the popular market town of Whittlesey

This detached bungalow offers generous accommodation with a 7.86m (25'10") lounge and a 7.24 (23'9") snooker room. The current layout provides two bedrooms, however the snooker room could easily be converted into two further bedrooms. The derelict bungalow has three rooms and a bathroom and is at the back of the plot. The grounds are mature and well stocked. Whittlesey is located east of Peterborough and offers shops and a rail link.

Tenure

Freehold

Accomodation

Hall, living room, kitchen/diner, snooker room/bedroom 3, utility, W.C. bathroom, two bedrooms and an integral garage.

Outside

Garden laid to lawn and parking. A detached derelict bungalow ideal for renovation.

Energy Efficiency Rating (EPC)

Current Rating C

Services

Interested parties are requested to make their own enquiries to the relevant authorities as to the availability of services.

Local Authority

Fenland District Council

Solicitors

Buckles, Ref: Rachel Parker, Tel: 01733 888888

Important Notice to Prospective Buyers:

We draw your attention to the Special Conditions of Sale within the Legal Pack, referring to other charges in addition to the purchase price which may become payable. Such costs may include Search Fees, reimbursement of Sellers costs and Legal Fees, and Transfer Fees amongst others.

Additional Fees

Administration Charge - 0.3% inc VAT of the purchase price, subject to a minimum of £1200 inc VAT, payable on exchange of contracts.

Disbursements - Please see the legal pack for any disbursements listed that may become payable by the purchaser on completion.

View Larger Map

Disclaimer: The map preview provided above is for general guidance only and may not accurately reflect the exact location or surrounding buildings. Prospective buyers and interested parties are strongly advised to independently verify the precise location and surroundings before bidding.