Sold Prior | Lot 16

10 Victoria Street, Norwich, Norfolk NR1 3QX

Sold Prior

  • Semi-Detached House
  • 3 Bedrooms
  • Tenure: Freehold

Call the team on 01603 505 100 for more information

Auction Date

Wed 15/06/2022

Auction Time

11:00

Auction Venue

Livestream Auction

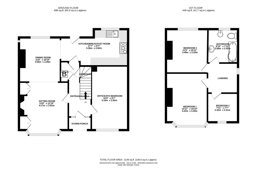
Semi detached 3/4 bedroom 1940's house with planning permission to extend, within walking distance of the city centre

This desirable property is in good order throughout and offers some attractive period features and particularly good storage areas, ideal for family occupation. On the ground floor there is a storm porch, hall, study/fourth bedroom, lounge/diner opening onto a spacious kitchen. Upstairs there are three bedrooms and family bathroom. Planning permission has been granted for an extension to the side and into the loft offering an additional master bedroom and ensuite bathroom. To the front there is a parking area and to the rear there is an easy to maintain garden. Viewing is strongly recommended.

Tenure

Freehold

Ground Floor

Storm porch, hall, study/fourth bedroom, lounge/diner, kitchen

First Floor

Landing, three bedrooms, family bathroom

Outside

Front garden has been brick weaved offering parking, screened by a mature hedge and planted with a variety of shrubs. Access leads to the rear garden which is fully enclosed and is hard landscaped for easy maintenance.

Viewings

Open viewings have been arranged and the next are Friday 20 and Thursday 26 May.To book an appointment please call the Norwich office.

Energy Efficiency Rating (EPC)

Current Rating D

Services

Interested parties are requested to make their own enquiries to the relevant authorities as to the availability of services.

Local Authority

Norwich City Council

Solicitors

Ward Gethin Archer, Ref: Tracy Guest, Tel: 01362 692182

Important Notice to Prospective Buyers:

We draw your attention to the Special Conditions of Sale within the Legal Pack, referring to other charges in addition to the purchase price which may become payable. Such costs may include Search Fees, reimbursement of Sellers costs and Legal Fees, and Transfer Fees amongst others.

Additional Fees

Buyer's Premium - £960 inc VAT payable on exchange of contracts.

Administration Charge - 0.3% inc VAT of the purchase price, subject to a minimum of £1200 inc VAT, payable on exchange of contracts.

Disbursements - Please see the legal pack for any disbursements listed that may become payable by the purchaser on completion.

View Larger Map

Disclaimer: The map preview provided above is for general guidance only and may not accurately reflect the exact location or surrounding buildings. Prospective buyers and interested parties are strongly advised to independently verify the precise location and surroundings before bidding.