Postponed | Lot 66

63 & 63a Bridge Street, Downham Market PE38 9DW

Postponed

  • Mixed Use
  • 1 Bedroom
  • Tenure: Freehold

Call the team on 01733 889833 for more information

Auction Date

Wed 15/06/2022

Auction Time

11:00

Auction Venue

Livestream Auction

A vacant freehold shop with a one bedroom self-contained flat above currently let producing £450 pcm

This mixed use freehold premises is located in the centre of Downham Market. The vacant ground floor retail unit was recently used as a hairdressers with an overall area of approximately 34 sq m. The first floor self-contained one bedroom flat is currently let, producing an income of £450 pcm (£5,400 pa). There is also a rear communal garden and garage. Downham Market has a range of shops as well as mainline railway station to nearby King's Lynn and London Kings Cross

Tenure

Freehold

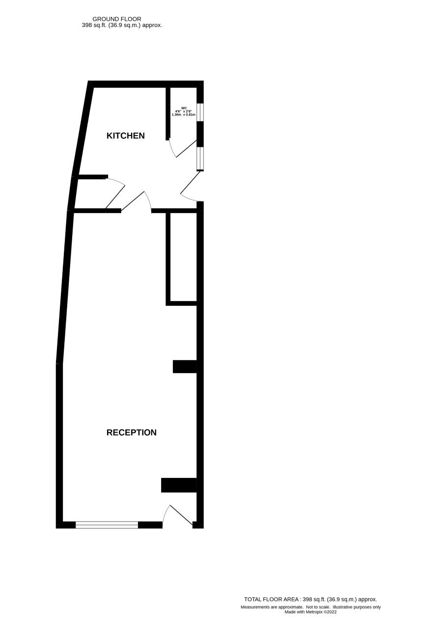
Ground floor retail unit

Front shop area, kitchen, wc

First floor flat

Lounge, kitchen, bedroom, bathroom.

Energy Efficiency Rating (EPC)

Current Rating Shop: E, Flat: E

Services

Interested parties are requested to make their own enquiries to the relevant authorities as to the availability of services.

Local Authority

Kings Lynn and West Norfolk Borough Council

Solicitors

Metcalfe Copeman & Pettefar LLP, Ref: Helen Robinson

Important Notice to Prospective Buyers:

We draw your attention to the Special Conditions of Sale within the Legal Pack, referring to other charges in addition to the purchase price which may become payable. Such costs may include Search Fees, reimbursement of Sellers costs and Legal Fees, and Transfer Fees amongst others.

Additional Fees

Buyer's Premium - £600 inc VAT payable on exchange of contracts.

Administration Charge - 0.3% inc VAT of the purchase price, subject to a miniumum of £1200 inc VAT, payable on exchange of contracts.

Disbursements - Please see the legal pack for any disbursements listed that may become payable by the purchaser on completion.

View Larger Map

Disclaimer: The map preview provided above is for general guidance only and may not accurately reflect the exact location or surrounding buildings. Prospective buyers and interested parties are strongly advised to independently verify the precise location and surroundings before bidding.