Postponed | Lot 64

10 North End Yard, King's Lynn PE30 2AD

Postponed

  • End of Terrace House
  • Tenure: Freehold

Call the team on 01733 889833 for more information

Auction Date

Wed 15/06/2022

Auction Time

11:00

Auction Venue

Livestream Auction

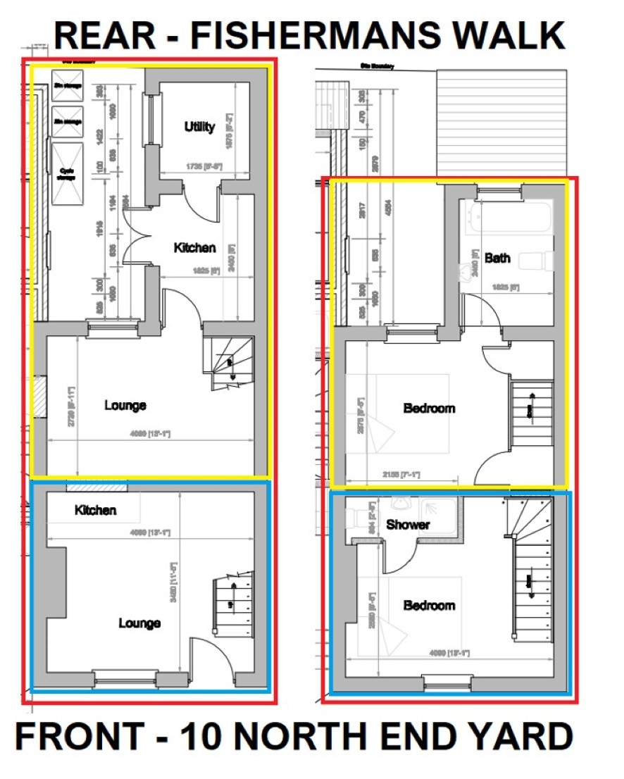
A freehold end terrace property consisting of two one bed units currently rented out with a total monthly income of £910 PCM

The property consists of two, one bedroom houses which are both currently let and produce a combined income of £910 pcm (£10,920 pa). The front unit offers lounge/kitchen to the ground floor and to the first floor a bedroom and shower room. The rear unit comprises of kitchen and living area to the ground floor and bedroom with en-suite bathroom to the first floor. Both properties benefit from gas central heating and UPVC double glazing. The end of terrace property is located close to the town centre of King's Lynn with its wide range of shopping facilities, bus station and railway links to London Kings Cross and Cambridge.

Tenure

Freehold

Front Unit

Living room/ kitchen, bedroom with shower room

Rear Unit

Living room, kitchen, bedroom with bathroom.

Energy Efficiency Rating (EPC)

Current Rating D

Services

Interested parties are requested to make their own enquiries to the relevant authorities as to the availability of services.

Local Authority

Kings Lynn and West Norfolk Borough Council

Solicitors

Fraser Dawbarns, Ref: Eileanora Ni-Charthaig, Tel: 01353 383483

Offered in association with

Bennett and Co

Important Notice to Prospective Buyers:

We draw your attention to the Special Conditions of Sale within the Legal Pack, referring to other charges in addition to the purchase price which may become payable. Such costs may include Search Fees, reimbursement of Sellers costs and Legal Fees, and Transfer Fees amongst others.

Additional Fees

Buyer's Premium - £600 inc VAT payable on exchange of contracts.

Administration Charge - 0.3% inc VAT of the purchase price, subject to a minimum of £1200 inc VAT, payable on exchange of contracts.

Disbursements - Please see the legal pack for any disbursements listed that may become payable by the purchaser on completion.

View Larger Map

Disclaimer: The map preview provided above is for general guidance only and may not accurately reflect the exact location or surrounding buildings. Prospective buyers and interested parties are strongly advised to independently verify the precise location and surroundings before bidding.