Postponed | Lot 14

22-22A Prince of Wales Road, Norwich, Norfolk NR1 1LB

Postponed

  • Commercial Development
  • Tenure: Freehold

Call the team on 01603 505 100 for more information

Auction Date

Wed 15/06/2022

Auction Time

11:00

Auction Venue

Livestream Auction

Commercial property in need of restoration situated in a bustling area of Norwich City centre

This substantial commercial property is situated in a well known area of the city known as Prince of Wales Road. This busy bustling street comes alive at night with many bars and restaurants. Spanning over five floors not including the cellar this property offers a great opportunity to someone looking to run a business or an investor looking for a yield. The property has recently been damaged and is in need of major repair and redecoration.

Tenure

Freehold

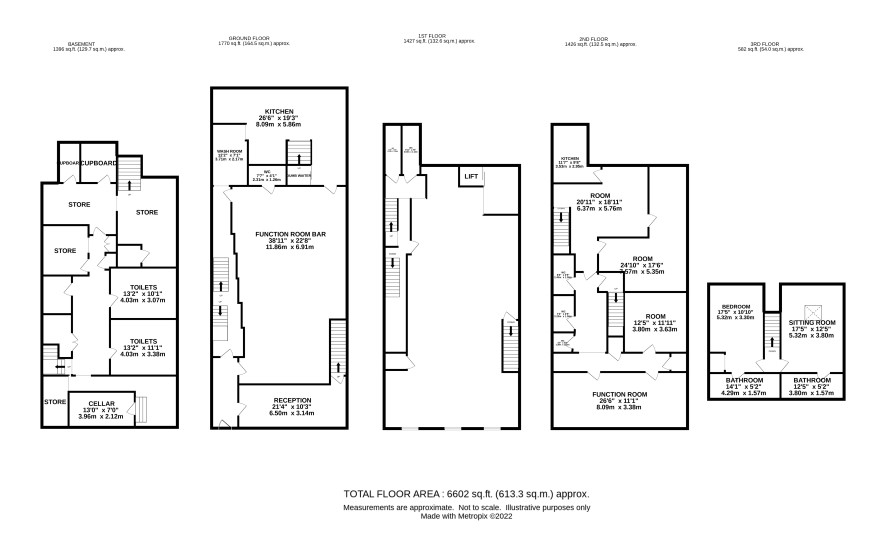
Ground floor

Entrance with stairs to further floors, function room, w.c., dishwasher/prep room, kitchen, dummy waiter, stairs to basement

Basement

Three coldstores, store rooms, ladies and gents toilets, stairs to cellar

First floor

Large function room, ladies and gents toilets stairs to second floor

Second floor

Four smaller function rooms, kitchen

Third floor

Landing, two bedrooms both offering ensuite bathrooms

Viewings

Individual viewings can be arranged - the next are on Monday 13 June. To book an appointment please call the Norwich office

Energy Efficiency Rating (EPC)

Current Rating E

Services

Interested parties are requested to make their own enquiries to the relevant authorities as to the availability of services.

Local Authority

Norwich City Council

Solicitors

Tweedie and Prideaux, Ref: Neal Aga

Important Notice to Prospective Buyers:

We draw your attention to the Special Conditions of Sale within the Legal Pack, referring to other charges in addition to the purchase price which may become payable. Such costs may include Search Fees, reimbursement of Sellers costs and Legal Fees, and Transfer Fees amongst others.

Additional Fees

Buyer's Premium - £960 inc VAT payable on exchange of contracts.

Administration Charge - 0.3% inc VAT of the purchase price, subject to a miniumum of £1200 inc VAT, payable on exchange of contracts.

Disbursements - Please see the legal pack for any disbursements listed that may become payable by the purchaser on completion.

View Larger Map

Disclaimer: The map preview provided above is for general guidance only and may not accurately reflect the exact location or surrounding buildings. Prospective buyers and interested parties are strongly advised to independently verify the precise location and surroundings before bidding.