Withdrawn | Lot 12

24 Aylsham Road, Norwich NR3 3HG

Withdrawn

  • Terraced House
  • 5 Bedrooms
  • Tenure: Freehold

Call the team on 01603 505 100 for more information

Auction Date

Wed 15/06/2022

Auction Time

11:00

Auction Venue

Livestream Auction

A bay fronted terrace house part way through a modernisation program, consent has been passed for conversion to a five bedroom house.

This former hall entrance, bay fronted terrace house has undergone preliminary work for conversion into a house of multiple occupation. Planning consent has been gained for 5 double bedrooms each with ensuite facilities with an open plan living/dining room with kitchen area and separate utility room. Full plans and consent are available on the Norwich City Council Planning website. This would be an excellent income generator or large family home. The house is a short walk from local shops and less than a mile from Norwich City Centre.

Tenure

Freehold

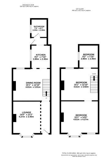
Existing Accommodation

Ground Floor: Open plan lounge, dining room, kitchen, shower room. First Floor: Currently providing 3 rooms (some internal walls have been removed)

Outside

Front garden, fenced rear garden with pedestrian access to rear.

Proposed Accommodation

Planning consent was obtained on 5th November 2021 for a two storey and single storey extension and to convert the accommodation into 5 bedrooms, Reference 21/01567/F. Ground Floor: Hall, Lounge, dining and kitchen areas, utility room, bedroom 1 with ensuite. First Floor: Landing 3 bedrooms with ensuite shower rooms. Second Floor: bedroom with ensuite shower room

Viewings

Open viewings can be arranged. To book an appointment please call the Norwich office.

Energy Efficiency Rating (EPC)

Current Rating D

Services

Interested parties are requested to make their own enquiries to the relevant authorities as to the availability of services.

Local Authority

Norwich City Council

Important Notice to Prospective Buyers:

We draw your attention to the Special Conditions of Sale within the Legal Pack, referring to other charges in addition to the purchase price which may become payable. Such costs may include Search Fees, reimbursement of Sellers costs and Legal Fees, and Transfer Fees amongst others.

Additional Fees

Buyer's Premium - £420 inc VAT payable on exchange of contracts.

Administration Charge - 0.3% inc VAT of the purchase price, subject to a minimum of £1200 inc VAT, payable on exchange of contracts.

Disbursements - Please see the legal pack for any disbursements listed that may become payable by the purchaser on completion.

View Larger Map

Disclaimer: The map preview provided above is for general guidance only and may not accurately reflect the exact location or surrounding buildings. Prospective buyers and interested parties are strongly advised to independently verify the precise location and surroundings before bidding.