For Sale By Auction | 11:00, 15 June 2022 | Lot 29

102 - 104 High Street, Stalham, Norwich, Norfolk NR12 9AU

Sold After

  • Hairdresser / Barber Shop
  • Tenure: Freehold

Call the team on 01603 505 100 for more information

Auction Date

Wed 15/06/2022

Auction Time

11:00

Auction Venue

Livestream Auction

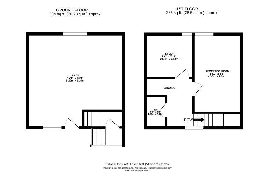
Two storey building part let to a hairdressers (Vacant first floor office) separate single storey lock up shop.

A two storey building which is currently part let as a hairdressers on the ground floor and a vacant therapy/treatment suite on the first floor. A separate single storey building is also included and is currently let to a dog grooming business. The rents have recently been reviewed and are £5,400 pa for the ground floor hairdressers and £2,400 pa for the dog groomers. The first floor office suite which is now vacant could rent for around £5,000 although potential may exist to convert the upper floor into residential accommodation (subject to planning approval). These two buildings are located to the rear of 106 High Street and are approached via a shared shingle driveway. The current income produced is jointly £7,800 per annum.

Tenure

Freehold

102 High Street, Stalham

Jaynes Hair Design. Ground floor salon, Rent £450 per month £5,400 pa. The tenant has been in situ for over 20 years on a rolling contract. The First floor is vacant and is available for rental or conversion.

104 High Street Stalham

TLC dog grooming. Single storey building let on an informal but well established tenancy at £200 per month (£2,400 per annum).

Viewings

By prior arrangement.

Energy Efficiency Rating (EPC)

Current Rating B, C, G

Services

Interested parties are requested to make their own enquiries to the relevant authorities as to the availability of services.

Local Authority

North Norfolk District Council

Solicitors

Ward Gethin Archer, Ref: Tracy Guest, Tel: 01362 692182

Offered in association with

Henleys (North Walsham)

Important Notice to Prospective Buyers:

We draw your attention to the Special Conditions of Sale within the Legal Pack, referring to other charges in addition to the purchase price which may become payable. Such costs may include Search Fees, reimbursement of Sellers costs and Legal Fees, and Transfer Fees amongst others.

Additional Fees

Buyer's Premium - £420 inc VAT payable on exchange of contracts.

Administration Charge - 0.3% inc VAT of the purchase price, subject to a minimum of £1200 inc VAT, payable on exchange of contracts.

Disbursements - Please see the legal pack for any disbursements listed that may become payable by the purchaser on completion.

View Larger Map

Disclaimer: The map preview provided above is for general guidance only and may not accurately reflect the exact location or surrounding buildings. Prospective buyers and interested parties are strongly advised to independently verify the precise location and surroundings before bidding.