For Sale By Auction | 11:00, 27 July 2022 | Lot 42

Heatherdene, The Loke, Winterton-On-Sea, Great Yarmouth, Norfolk NR29 4AS

Sold £161,000

  • Semi-Detached House
  • 2 Bedrooms
  • Tenure: Freehold

Call the team on 01603 505 100 for more information

Auction Date

Wed 27/07/2022

Auction Time

11:00

Auction Venue

Livestream Auction

Period semi detached cottage in need of complete refurbishment close to the beach

Of interest to cash buyers is this two bedroom cottage walking distance from a stunning unspoilt beach. The property which is not listed has been vacant for a number of years and requires a comprehensive program of improvement to realise its full potential. It is situated in a quiet location down a pedestrian only Loke and is only a third of a mile from the beach. It would make an ideal permanent home, holiday let or second home. Winterton-on-Sea is a pretty seaside village located close to the Norfolk Broads and is around nine miles north of Great Yarmouth.

Tenure

Freehold

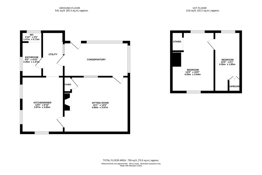
Ground Floor

Conservatory, utility, bathroom, w.c., kitchen / dining room, sitting room

First Floor

Two bedrooms

Outside

Side access way, enclosed west facing rear garden in need of attention, timber summer house, other outbuildings.

Council Tax Band

A

Viewings

Viewings have been arranged for Wednesday 20th and Friday 22nd July. To book an appointment please call the Norwich office.

Energy Efficiency Rating (EPC)

Current Rating E

Services

Interested parties are requested to make their own enquiries to the relevant authorities as to the availability of services.

Local Authority

Great Yarmouth Borough Council

Solicitors

Rogers & Norton, Ref: Michele Walters, Tel: 01603 666001

Important Notice to Prospective Buyers:

We draw your attention to the Special Conditions of Sale within the Legal Pack, referring to other charges in addition to the purchase price which may become payable. Such costs may include Search Fees, reimbursement of Sellers costs and Legal Fees, and Transfer Fees amongst others.

Additional Fees

Administration Charge - 0.3% inc VAT of the purchase price, subject to a minimum of £1200 inc VAT, payable on exchange of contracts.

Disbursements - Please see the legal pack for any disbursements listed that may become payable by the purchaser on completion.

View Larger Map

Disclaimer: The map preview provided above is for general guidance only and may not accurately reflect the exact location or surrounding buildings. Prospective buyers and interested parties are strongly advised to independently verify the precise location and surroundings before bidding.