For Sale By Auction | 11:00, 27 July 2022 | Lot 63

Flat 5, 105 Park Road, Peterborough, Cambridgeshire PE1 2TR

Sold £55,000

  • Flat
  • 1 Bedroom
  • Tenure: Leasehold

Call the team on 01733 889833 for more information

Auction Date

Wed 27/07/2022

Auction Time

11:00

Auction Venue

Livestream Auction

A first floor one bedroom flat in the city centre, for owner occupation.

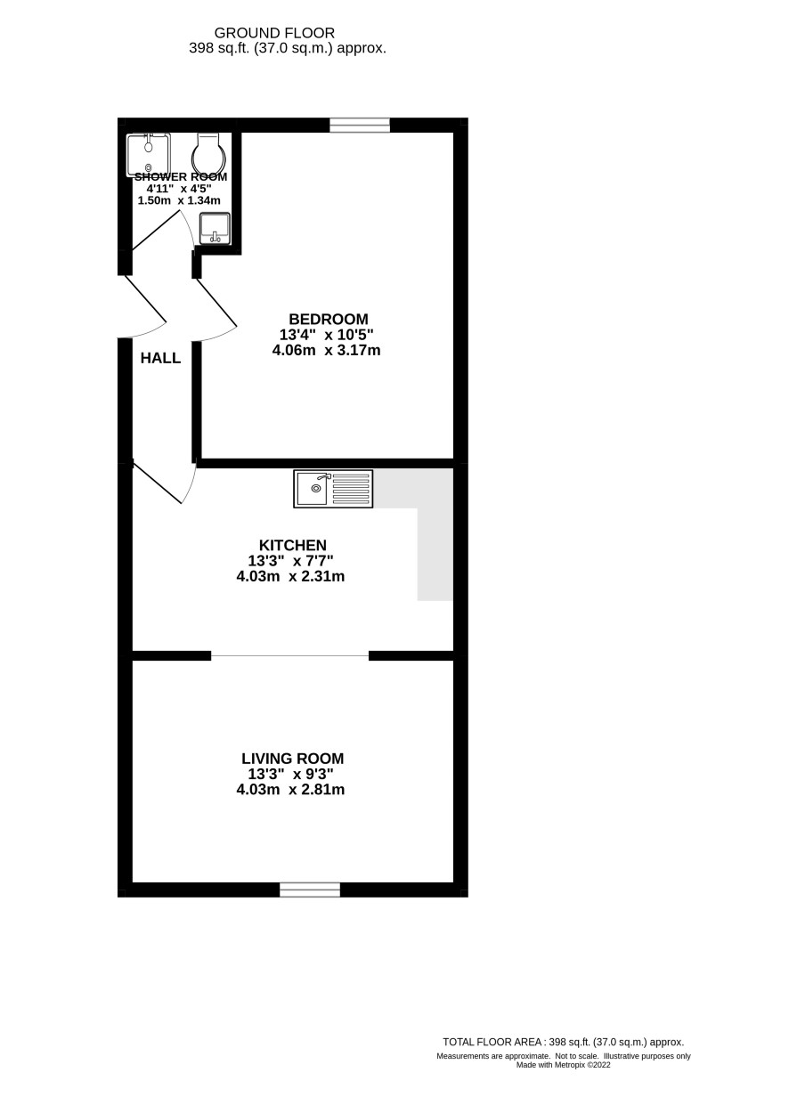
This one bedroom flat is located in a conversion of a house and has been recently renovated by the owners. The flat comprises a hall, living room, kitchen, bedroom and a shower room. The property is located in Park Road with easy access to the Westgate Shopping Centre and the main line railway station with access to London Kings Cross.

Tenure

Leasehold

Accommodation

Hall, living room, kitchen, bedroom, shower room.

Note

The flat can only be sold to owner occupiers and not bought as an investment to rent out.

Lease Details

Term: 99 years from 3 July 1987 (64 years remaining) Annual ground rent amount: £75 pa until 3/7/2037 Ground rent review period: 3 July 2037/3 July 2062 Annual service charge amount: £598.50 (1/10/21 - 30/9/22) Service charge review period: Yearly - next due 1/10/22

Council Tax Band

A

Energy Efficiency Rating (EPC)

Current Rating C

Services

Interested parties are requested to make their own enquiries to the relevant authorities as to the availability of services.

Local Authority

Peterborough City Council

Solicitors

HS Lawyers, Ref: Asad Arif, Tel: 01733 703978

Important Notice to Prospective Buyers:

We draw your attention to the Special Conditions of Sale within the Legal Pack, referring to other charges in addition to the purchase price which may become payable. Such costs may include Search Fees, reimbursement of Sellers costs and Legal Fees, and Transfer Fees amongst others.

Additional Fees

Buyer's Premium - £600 inc VAT payable on exchange of contracts.

Administration Charge - 0.3% inc VAT of the purchase price, subject to a minimum of £1200 inc VAT, payable on exchange of contracts.

Disbursements - Please see the legal pack for any disbursements listed that may become payable by the purchaser on completion.

View Larger Map

Disclaimer: The map preview provided above is for general guidance only and may not accurately reflect the exact location or surrounding buildings. Prospective buyers and interested parties are strongly advised to independently verify the precise location and surroundings before bidding.