Sold Prior | Lot 50

38 Norwich Road, Lowestoft, Suffolk NR32 2BW

Sold Prior

  • Terraced House
  • 4 Bedrooms
  • Tenure: Freehold

Call the team on 01603 505 100 for more information

Auction Date

Wed 27/07/2022

Auction Time

11:00

Auction Venue

Livestream Auction

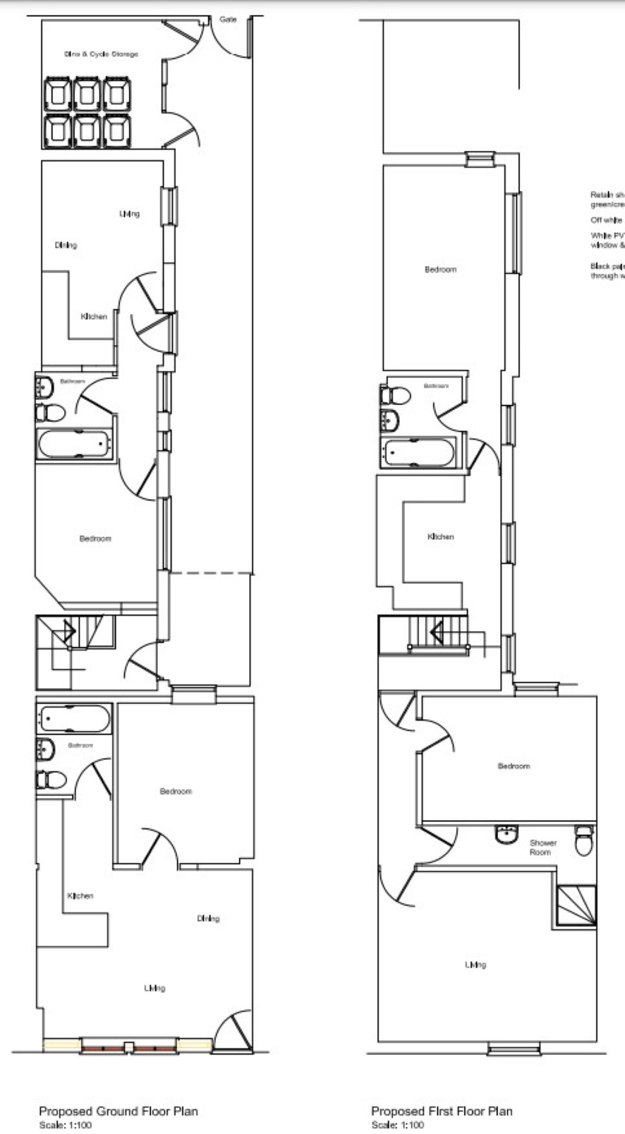
A former butchers shop with planning permission for conversion into three self contained apartments.

Planning permission has been obtained for the conversion of this two storey dwelling into two one bedroom ground floor flats and a two bedroom first floor flat. The consent, which was obtained in February 2022, provides ideal accommodation for rental purposes or future resale. Norwich Road is within walking distance of the town centre, harbour and railway station.

Tenure

Freehold

Proposed Accommodation

Ground Floor: Flat One with front entrance, living/dining room with kitchen off bedroom, bathroom. Flat Two with rear entrance, hall, lounge/kitchen, bedroom, bathroom, First Floor: Flat Three with rear entrance lobby, first floor landing, lounge, kitchen, bathroom, two bedrooms.

Outside

Small front garden, rear courtyard style garden, proposed bin store area.

Planning

Planning permission was granted by East Suffolk Council, Planning reference: DC/17/4101/FUL on 28th February 2022

Note

Please note, it is business rates exempt

Council Tax Band

B

Energy Efficiency Rating (EPC)

Current Rating F

Services

Interested parties are requested to make their own enquiries to the relevant authorities as to the availability of services.

Local Authority

Waveney District Council

Solicitors

Bindman, Ref: Claire Stanton, Tel: 0191 432 4408

Important Notice to Prospective Buyers:

We draw your attention to the Special Conditions of Sale within the Legal Pack, referring to other charges in addition to the purchase price which may become payable. Such costs may include Search Fees, reimbursement of Sellers costs and Legal Fees, and Transfer Fees amongst others.

Additional Fees

Buyer's Premium - £420 inc VAT payable on exchange of contracts.

Administration Charge - 0.3% inc VAT of the purchase price, subject to a minimum of £1200 inc VAT, payable on exchange of contracts.

Disbursements - Please see the legal pack for any disbursements listed that may become payable by the purchaser on completion.

View Larger Map

Disclaimer: The map preview provided above is for general guidance only and may not accurately reflect the exact location or surrounding buildings. Prospective buyers and interested parties are strongly advised to independently verify the precise location and surroundings before bidding.