Postponed | Lot 27

7-9 Tacket Street, Ipswich, Suffolk IP4 1AU

Postponed

  • House of Multiple Occupation
  • 7 Bedrooms
  • Tenure: Leasehold

Call the team on 01473 558 888 for more information

Auction Date

Wed 27/07/2022

Auction Time

11:00

Auction Venue

Livestream Auction

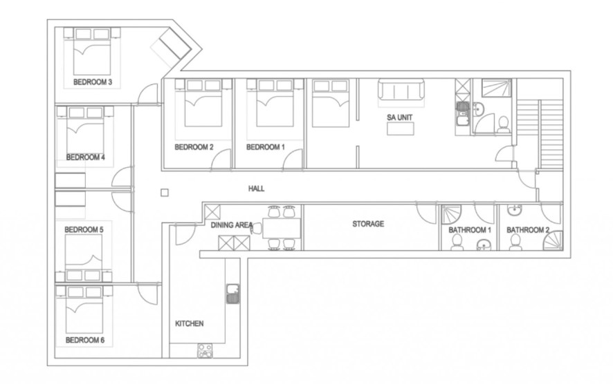
A fully let high yielding HMO in a town centre location

Situated in the very heart of Ipswich town centre is this fully let licenced HMO with 4 parking spaces and a garage. This well presented property is held on a 125 year lease from 2016 with a non-increasing Ground Rent of £250 per annum and comprises 6 letting rooms and a self contained studio all of which are let on Assured Shorthold Tenancies and provide an annual income of £43,560. To the rear is parking space for 4 cars along with a SINGLE GARAGE which has been let on a 5 year term at a rent of £900 per annum. With an overall annual income of £46,260 which equates to over 15% of the low Guide Price this has to be an investment not to be overlooked.

Tenure

Leasehold

Lease Details

Term: 125 years from 2016 (approximately 119 years remaining) Annual ground rent amount: £250 Ground rent review period: Not applicable (non- increasing) Annual service charge amount: Nil - Annual insurance contribution around £600 pa Service charge review period: Not applicable

Council Tax Band

7 Tacket Street: B 9 Tacket Street: A

Energy Efficiency Rating (EPC)

Current Rating F

Services

Interested parties are requested to make their own enquiries to the relevant authorities as to the availability of services.

Local Authority

Ipswich Borough Council

Solicitors

Scott Walby LLP Solicitors, Ref: John Bulpit

Important Notice to Prospective Buyers:

We draw your attention to the Special Conditions of Sale within the Legal Pack, referring to other charges in addition to the purchase price which may become payable. Such costs may include Search Fees, reimbursement of Sellers costs and Legal Fees, and Transfer Fees amongst others.

Additional Fees

Buyer's Premium - £900 inc VAT payable on exchange of contracts.

Administration Charge - 0.3% inc VAT of the purchase price, subject to a minimum of £1200 inc VAT, payable on exchange of contracts.

Disbursements - Please see the legal pack for any disbursements listed that may become payable by the purchaser on completion.

View Larger Map

Disclaimer: The map preview provided above is for general guidance only and may not accurately reflect the exact location or surrounding buildings. Prospective buyers and interested parties are strongly advised to independently verify the precise location and surroundings before bidding.