Postponed | Lot 59

17 Bergholt Road, Colchester, Essex CO4 5AA

Postponed

  • Detached House
  • 4 Bedrooms
  • Tenure: Freehold

Call the team on 01473 558 888 for more information

Auction Date

Wed 27/07/2022

Auction Time

11:00

Auction Venue

Livestream Auction

A well proportioned detached house situated close to the railway station

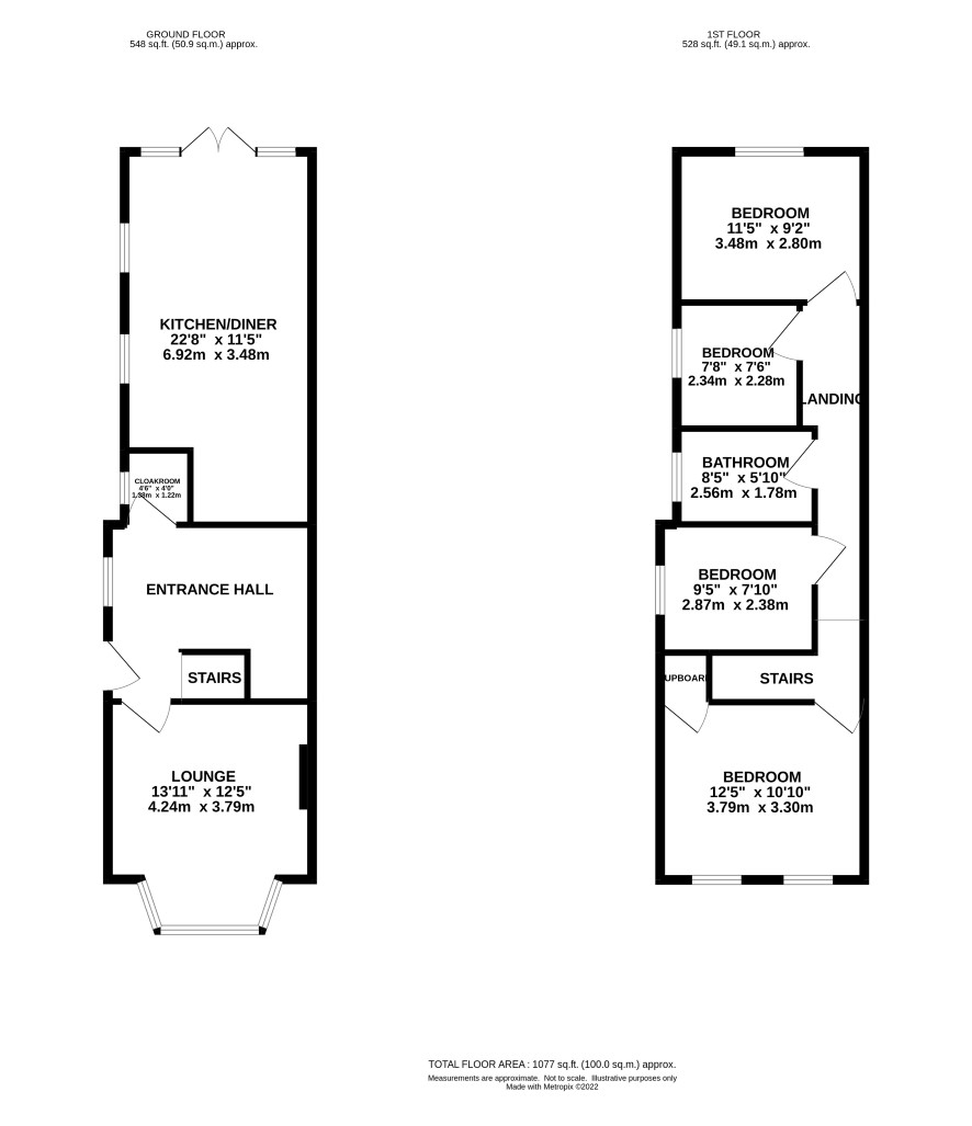
Built during the late 19th Century, this spacious detached house offers versatile living space which has most recently had the rooms let out individually but would equally make a comfortable family home. The 4 bedroom accommodation benefits from gas central heating (not tested) and features a 22'8" fitted kitchen/diner, a good size garden with decking and is nicely presented throughout. This is a rare opportunity which will no doubt have considerable appeal to both owner occupiers and investors alike.

Tenure

Freehold

Council Tax Band

C

Viewing

Open viewings have been scheduled for Wed 13th and Thurs 21st July. BOOKING AN APPOINTMENT IS ESSENTIAL. Please contact our Ipswich office to be allocated the next available slot on your preferred day.

Energy Efficiency Rating (EPC)

Current Rating D

Services

Interested parties are requested to make their own enquiries to the relevant authorities as to the availability of services.

Local Authority

Colchester Borough Council

Solicitors

John Fowlers Solicitors, Town Hall Chambers Churchyard, Ref: Ami Murphy, Tel: 01206 576151

Important Notice to Prospective Buyers:

We draw your attention to the Special Conditions of Sale within the Legal Pack, referring to other charges in addition to the purchase price which may become payable. Such costs may include Search Fees, reimbursement of Sellers costs and Legal Fees, and Transfer Fees amongst others.

Additional Fees

Buyer's Premium - £900 inc VAT payable on exchange of contracts.

Administration Charge - 0.3% inc VAT of the purchase price, subject to a minimum of £1200 inc VAT, payable on exchange of contracts.

Disbursements - Please see the legal pack for any disbursements listed that may become payable by the purchaser on completion.

View Larger Map

Disclaimer: The map preview provided above is for general guidance only and may not accurately reflect the exact location or surrounding buildings. Prospective buyers and interested parties are strongly advised to independently verify the precise location and surroundings before bidding.