Postponed | Lot 84

3 Cambridge Street, Norwich, Norfolk NR2 2BA

Postponed

  • Terraced House
  • 13 Bedrooms
  • Tenure: Freehold

Call the team on 01603 505 100 for more information

Auction Date

Wed 27/07/2022

Auction Time

11:00

Auction Venue

Livestream Auction

A highly productive investment property in the Golden triangle which has a gross income potential of over £60,000 per annum. It also benefits from planning for conversion into four flats.

This five storey hall entrance terrace house is currently arranged as 4 apartments which jointly provide 13 letting rooms. When fully let it would produce a gross income in excess of £60,000 pa, The current income is £53,340 with two lower ground floor rooms currently vacant. The property also benefits from a detailed planning approval for conversion into four self contained flats. Some improvement work is required but once upgraded the property would provide an excellent rental return or development opportunity Cambridge Street is situated just off the Unthank Road, close to a wide range of shops and well placed for access into the city centre, to the University and Norfolk and Norwich Hospital.

Tenure

Freehold

Current Accommodation

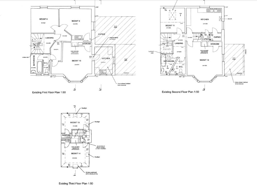
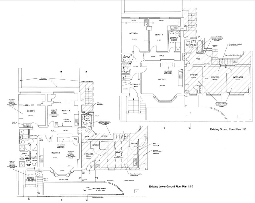
Lower Ground Floor: Three bedsits, three shower rooms Ground Floor: Three bedsits, shower room First Floor: Three bedsits, bathroom, separate w.c. Second Floor: Kitchen, two bedsits, bathroom, separate w.c. Third Floor: Two bedsits.

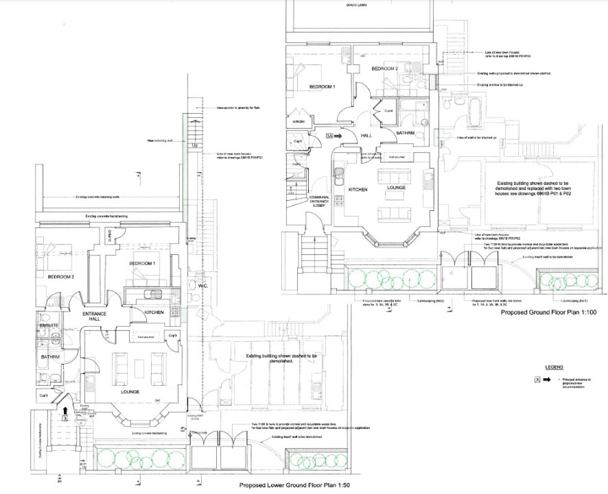
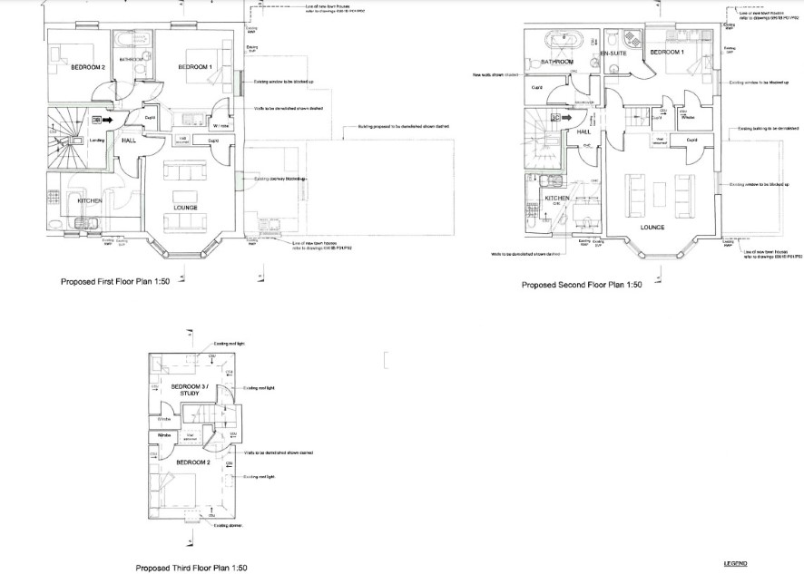
Proposed Accommodation

Three two bedroom flats, one duplex three bedroom apartment

Outside

Gardens to front and rear

Planning

Planning approval was received from Norwich City Council in Feb 2021 Planning Ref. 10/01560/F. Full plans and conditions are available on the NCC planning portal.

Council Tax Band

E

Energy Efficiency Rating (EPC)

Current Rating Please refer to Legal Pack

Services

Interested parties are requested to make their own enquiries to the relevant authorities as to the availability of services.

Local Authority

Norwich City Council

Solicitors

Rogers & Norton, Ref: Donatas Staniulis, Tel: 01603 666001

Important Notice to Prospective Buyers:

We draw your attention to the Special Conditions of Sale within the Legal Pack, referring to other charges in addition to the purchase price which may become payable. Such costs may include Search Fees, reimbursement of Sellers costs and Legal Fees, and Transfer Fees amongst others.

Additional Fees

Buyer's Premium - £600 inc VAT payable on exchange of contracts.

Administration Charge - 0.3% inc VAT of the purchase price, subject to a minimum of £1200 inc VAT, payable on exchange of contracts.

Disbursements - Please see the legal pack for any disbursements listed that may become payable by the purchaser on completion.

View Larger Map

Disclaimer: The map preview provided above is for general guidance only and may not accurately reflect the exact location or surrounding buildings. Prospective buyers and interested parties are strongly advised to independently verify the precise location and surroundings before bidding.