Postponed | Lot 8

4 Hamilton Close, South Walsham, Norwich, Norfolk NR13 6DP

Postponed

  • Semi-Detached House
  • 2 Bedrooms
  • Tenure: Freehold

Call the team on 01603 505 100 for more information

Auction Date

Wed 14/09/2022

Auction Time

11:00

Auction Venue

Livestream Auction

A spacious semi-detached property with off road parking, outbuildings and large garden to the rear

A well-proportioned semi-detached two bedroom property of non-standard construction with huge potential for refurbishment and modernisation. The property benefits from a large garden to the rear, off-road parking, a workshop and a garage. A great project in the making. Located down a quiet cul de sac, to the south west of South Walsham, the property sits near the Norfolk Broads and is 8.5 miles east of Norwich.

Tenure

Freehold

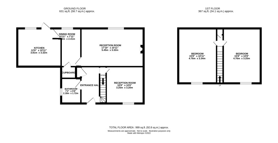
Ground Floor

Two reception rooms, bathroom, dining room, kitchen.

First Floor

Two bedrooms.

Council Tax Band

A

Energy Efficiency Rating (EPC)

Current Rating F

Services

Interested parties are requested to make their own enquiries to the relevant authorities as to the availability of services.

Local Authority

Broadland District Council

Solicitors

Clarke Willmott LLP, Ref: Carly Blunn

Important Notice to Prospective Buyers:

We draw your attention to the Special Conditions of Sale within the Legal Pack, referring to other charges in addition to the purchase price which may become payable. Such costs may include Search Fees, reimbursement of Sellers costs and Legal Fees, and Transfer Fees amongst others.

Additional Fees

Buyer's Premium - £900 including VAT

Administration Charge - 0.3% inc VAT of the purchase price, subject to a minimum of £1200 inc VAT, payable on exchange of contracts.

Disbursements - Please see the legal pack for any disbursements listed that may become payable by the purchaser on completion.

View Larger Map

Disclaimer: The map preview provided above is for general guidance only and may not accurately reflect the exact location or surrounding buildings. Prospective buyers and interested parties are strongly advised to independently verify the precise location and surroundings before bidding.