Sold Prior | Lot 70

6 School Lane, Wisbech, Cambridgeshire PE13 1AW

Sold Prior

  • Semi-Detached House
  • 4 Bedrooms
  • Tenure: Freehold

Call the team on 01733 889833 for more information

Auction Date

Wed 14/09/2022

Auction Time

11:00

Auction Venue

Livestream Auction

A Grade II listed four bedroom semi detached Victorian cottage in the town centre in need of renovation.

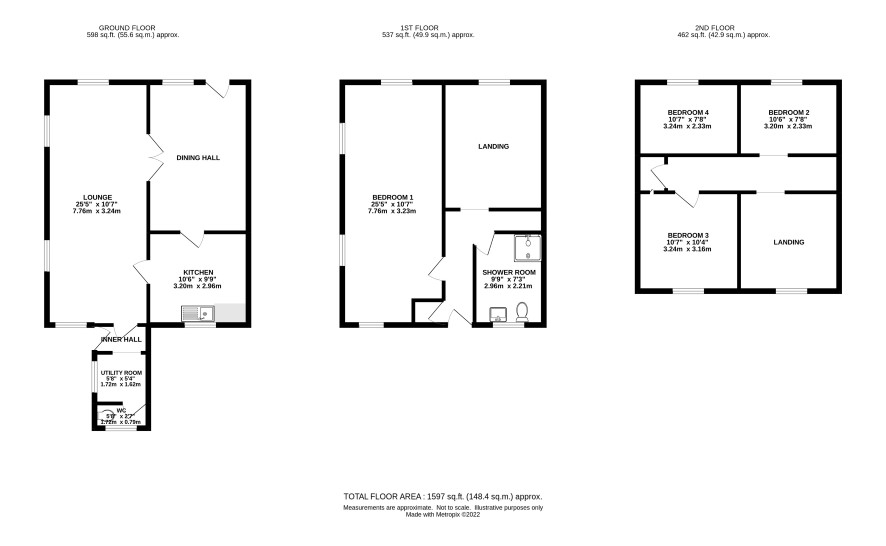
This four bedroom cottage is located in the centre of Wisbech. It is in need of renovation and offered with vacant possession. The accommodation is on three levels and offers various uses with a courtyard area at the rear. Accommodation includes four bedrooms, one on the first floor and three on the second floor, a replaced kitchen, large reception room, first floor shower room, dining hall and a utility and W.C. Outside at the rear is a courtyard with side access. Wisbech is located between Peterborough and Kings Lynn both offering rail links into London together with the A47 providing road links. The town has shopping and recreational facilities together with the river Nene.

Tenure

Freehold

Ground Floor

Dining hall, lounge, utility room, w.c.

First Floor

Master bedroom, shower room.

Second Floor

Landing area, three bedrooms.

Outside

Rear enclosed courtyard area.

Council Tax Band

A

Services

Interested parties are requested to make their own enquiries to the relevant authorities as to the availability of services.

Local Authority

Fenland District Council

Solicitors

Fraser Dawbarns, Ref: Annie Riches, Tel: 01945 586 694

Important Notice to Prospective Buyers:

We draw your attention to the Special Conditions of Sale within the Legal Pack, referring to other charges in addition to the purchase price which may become payable. Such costs may include Search Fees, reimbursement of Sellers costs and Legal Fees, and Transfer Fees amongst others.

Additional Fees

Buyer's Premium - £600 inc VAT payable on exchange of contracts.

Administration Charge - 0.3% inc VAT of the purchase price, subject to a minimum of £1200 inc VAT, payable on exchange of contracts.

Disbursements - Please see the legal pack for any disbursements listed that may become payable by the purchaser on completion.

View Larger Map

Disclaimer: The map preview provided above is for general guidance only and may not accurately reflect the exact location or surrounding buildings. Prospective buyers and interested parties are strongly advised to independently verify the precise location and surroundings before bidding.