For Sale By Auction | 11:00, 14 September 2022 | Lot 4

16 Cromer Road, North Walsham, Norfolk NR28 0HD

Sold £100,000

  • Terraced House
  • 2 Bedrooms
  • Tenure: Freehold

Call the team on 01603 505 100 for more information

Auction Date

Wed 14/09/2022

Auction Time

11:00

Auction Venue

Livestream Auction

Currently tenanted this quaint mid terraced property is situated in the centre of North Walsham and is in need of some updating.

Quaint mid terraced property which is situated in a convenient location for the town centre of North Walsham. The current tenants have been residents for 3 years and is currently producing £500 pcm. The property is in need of some updating and offers sitting room, kitchen, bathroom on the ground floor with two bedrooms on the first floor. There is rear access to the back garden which is a generous size for the property, however is in need of some attention. The house would be an ideal first time buy, buy to let or holiday cottage with North Norfolk under 10 miles away.

Tenure

Freehold

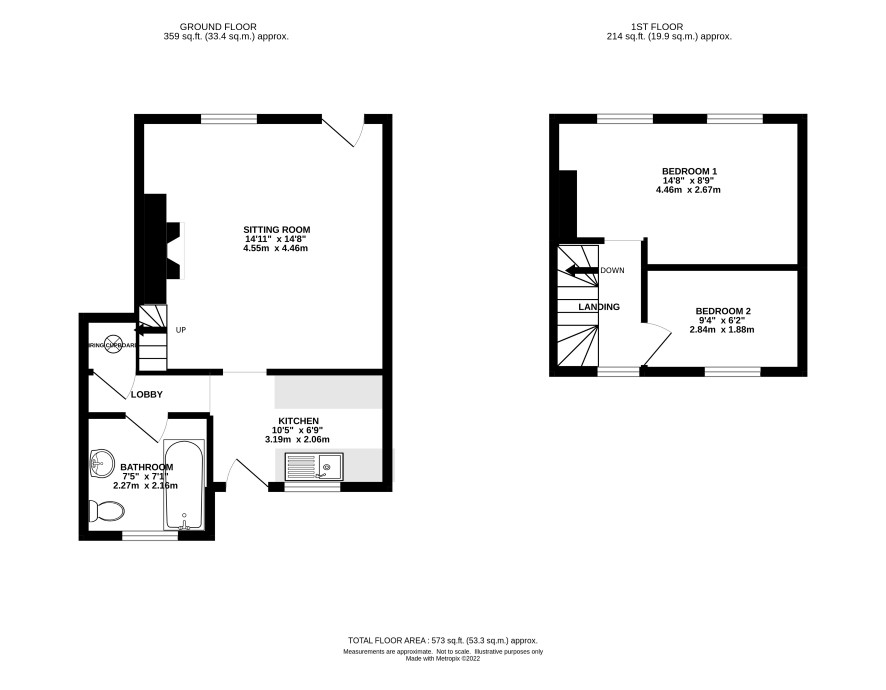
Ground floor

Sitting Room, kitchen, bathroom

First floor

Landing, two bedrooms

Exterior

Access leads to the rear with gated access to the generous garden. The garden is in need of some attention.

Council Tax Band

A

Viewings

Open Viewings have been scheduled for Friday 9th September - APPOINTMENT ESSENTIAL, please call our Norwich office on 01603 505100 to be allocated a time slot

Energy Efficiency Rating (EPC)

Current Rating E

Services

Interested parties are requested to make their own enquiries to the relevant authorities as to the availability of services.

Local Authority

North Norfolk District Council

Solicitors

Ward Gethin Archer (Dereham), Ref: Tracy Guest, Tel: 01362 692182

Important Notice to Prospective Buyers:

We draw your attention to the Special Conditions of Sale within the Legal Pack, referring to other charges in addition to the purchase price which may become payable. Such costs may include Search Fees, reimbursement of Sellers costs and Legal Fees, and Transfer Fees amongst others.

Additional Fees

Buyer's Premium - £960 inc VAT payable on exchange of contracts.

Administration Charge - 0.3% inc VAT of the purchase price, subject to a minimum of £1200 inc VAT, payable on exchange of contracts.

Disbursements - Please see the legal pack for any disbursements listed that may become payable by the purchaser on completion.

View Larger Map

Disclaimer: The map preview provided above is for general guidance only and may not accurately reflect the exact location or surrounding buildings. Prospective buyers and interested parties are strongly advised to independently verify the precise location and surroundings before bidding.