Postponed | Lot 26

Oldfield Cottage, Main Road, Tydd, Wisbech, Lincolnshire PE13 5QG

Postponed

  • Semi-Detached House
  • 3 Bedrooms
  • Tenure: Freehold

Call the team on 01733 889833 for more information

Auction Date

Wed 14/09/2022

Auction Time

11:00

Auction Venue

Livestream Auction

A three bedroom semi detached cottage currently let producing £10,200 pa

This semi detached property is currently let and produces £850 pcm (£10,200 pa) on an assured shorthold tenancy agreement. The three bedroom house offers good sized accommodation with living room, dining room and kitchen/breakfast room on the ground floor. On the first floor there are three bedrooms and bathroom. The property also benefits from a garden to the rear and oil fired central heating. Tydd Gote is a village conveniently located for Wisbech, Long Sutton and Sutton Bridge all of which have a good range of shops, schools and leisure facilities. Kings Lynn is approximately 13 miles away and has a main line station with rail links to Cambridge and London's Kings Cross Station.

Tenure

Freehold

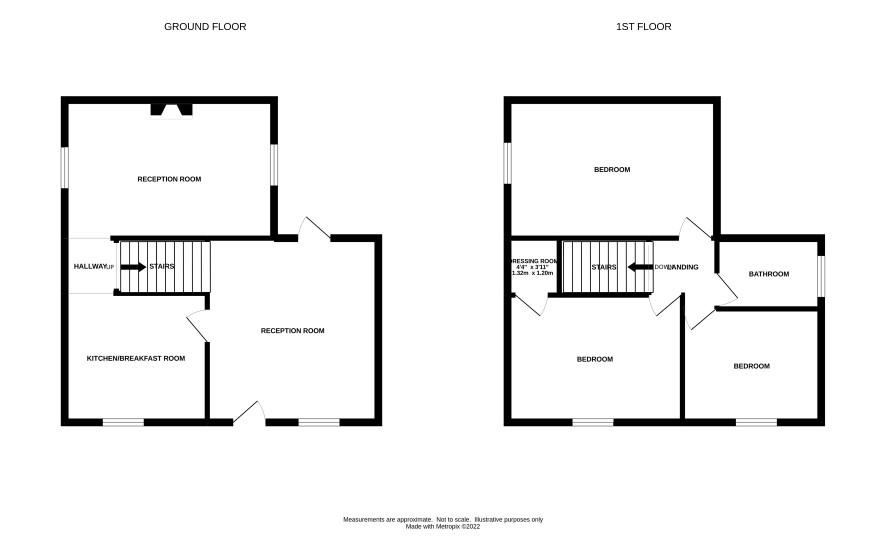
Ground Floor

Living Room, dining room, kitchen/breakfast room

First Floor

Three bedrooms, bathroom

Outside

Garden to rear

Council Tax Band

A

Energy Efficiency Rating (EPC)

Current Rating D

Services

Interested parties are requested to make their own enquiries to the relevant authorities as to the availability of services.

Local Authority

South Holland District Council

Solicitors

Fraser Dawbarns (Wisbech), Ref: Sarah Johnson, Tel: 01945 468726

Offered in association with

Phoenix Estate Agents

Important Notice to Prospective Buyers:

We draw your attention to the Special Conditions of Sale within the Legal Pack, referring to other charges in addition to the purchase price which may become payable. Such costs may include Search Fees, reimbursement of Sellers costs and Legal Fees, and Transfer Fees amongst others.

Additional Fees

Buyer's Premium - £600 inc VAT payable on exchange of contracts.

Administration Charge - 0.3% inc VAT of the purchase price, subject to a minimum of £1200 inc VAT, payable on exchange of contracts.

Disbursements - Please see the legal pack for any disbursements listed that may become payable by the purchaser on completion.

View Larger Map

Disclaimer: The map preview provided above is for general guidance only and may not accurately reflect the exact location or surrounding buildings. Prospective buyers and interested parties are strongly advised to independently verify the precise location and surroundings before bidding.