For Sale By Auction | 11:00, 14 September 2022 | Lot 38

7 Apsley Road, Great Yarmouth, Norfolk NR30 2HG

Sold £119,000

  • Terraced House
  • 4 Bedrooms
  • Tenure: Freehold

Call the team on 01603 505 100 for more information

Auction Date

Wed 14/09/2022

Auction Time

11:00

Auction Venue

Livestream Auction

Hall entrance bay fronted terraced property in need of updating situated close to sea front and town centre

This hall entrance terraced property is vacant and in need of modernisation. Currently the property provides for four bedrooms and two reception rooms but subject to necessary planning approval may have the potential to be divided into two flats. Renovation works have commenced but have not been completed therefore it now offers a great opportunity for those looking for a project, family home or investment. Great Yarmouth is a highly popular seaside town with numerous recreational and community facilities as well as being a busy commercial centre and shipping port.

Tenure

Freehold

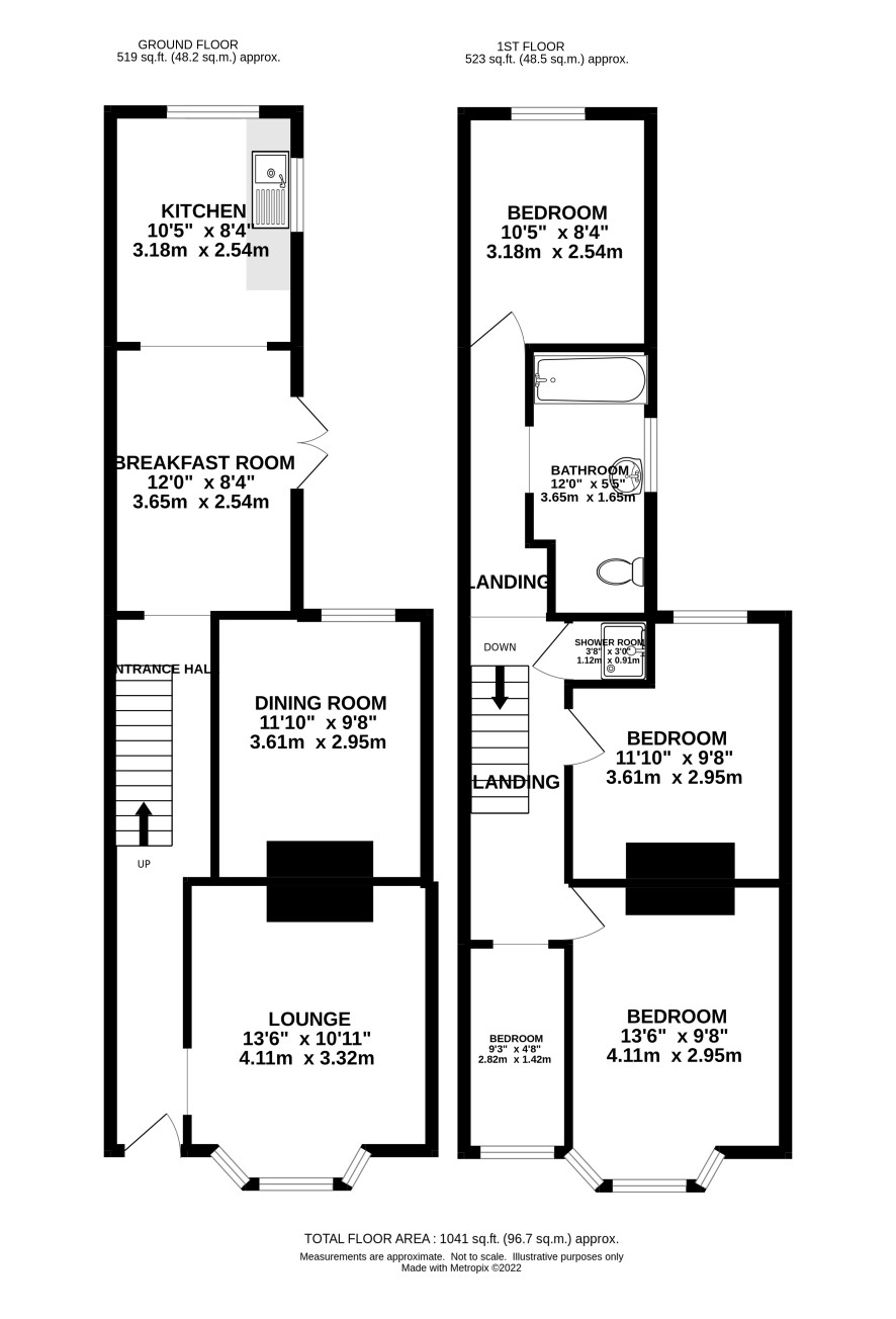
Ground Floor

Entrance hall, lounge, dining room, kitchen/breakfast room

First Floor

Landing, four bedrooms, bathroom, separate shower

Outside

Walled front garden leading to front entrance. Gated rear access leads to courtyard with outside w.c.

Council Tax Band

B

Viewings

Open viewings have been arranged and the next are on Friday 9 September. Please call the Norwich office to book an appointment.

Energy Efficiency Rating (EPC)

Current Rating G

Services

Interested parties are requested to make their own enquiries to the relevant authorities as to the availability of services.

Local Authority

Great Yarmouth Borough Council

Solicitors

Spire Solicitors LLP (Norwich), Ref: Ben Keane, Tel: 01603 677077

Important Notice to Prospective Buyers:

We draw your attention to the Special Conditions of Sale within the Legal Pack, referring to other charges in addition to the purchase price which may become payable. Such costs may include Search Fees, reimbursement of Sellers costs and Legal Fees, and Transfer Fees amongst others.

Additional Fees

Buyer's Premium - £420 inc VAT payable on exchange of contracts.

Administration Charge - 0.3% inc VAT of the purchase price, subject to a minimum of £1200 inc VAT, payable on exchange of contracts.

Disbursements - Please see the legal pack for any disbursements listed that may become payable by the purchaser on completion.

View Larger Map

Disclaimer: The map preview provided above is for general guidance only and may not accurately reflect the exact location or surrounding buildings. Prospective buyers and interested parties are strongly advised to independently verify the precise location and surroundings before bidding.