Postponed | Lot 20

The Old School, Wilby Road, Eccles, Quidenham, Norfolk NR16 2PF

Postponed

  • Residential Development
  • Tenure: Freehold

Call the team on 01603 505 100 for more information

Auction Date

Wed 14/09/2022

Auction Time

11:00

Auction Venue

Livestream Auction

Exciting project with full planning permission to restore the former school in the village of Eccles which lays close to the A11 in Norfolk

This Victorian former school has stood empty for a number of years and is wanting desperately to be restored. The period features will help create a fabulous home once the conversion has been completed. Every room has a story to tell and the areas in which it evolved are evident. The school has additions to the rear, one added in the 1930s and the other in the 1990s. The school has a prominent corner position within the village of Eccles which is situated conveniently for the A11. Currently the property is vacant and plans for a pair of cottages have been approved by Breckland District Council under reference 3DC/2021/0278/DOC however the plans could be altered subject to approval. This unique opportunity offers an abundance of character which would benefit any renovation project. There is a tarmac playground to the rear, currently offering hard standing and what would be the garden for the property. A viewing is essential to fully appreciate the potential it has to offer.

Tenure

Freehold

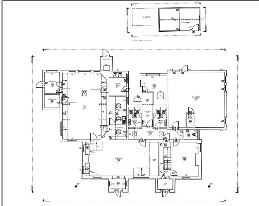
Ground floor

Entrance hall, store cupboard, Victorian assembly hall, kitchen, store room, his and hers toilet blocks, rear hall, office, cloakroom, two classrooms, library. Original Victorian main hall 9.7m x 4.62m Library part of Original Victorian building 4.66m x 3.25m 1930’s Main Hall (wooden floor) 9.13m x 6.08m Loft hatch 1930’s Kitchen (Wooden Floor) 3.16m x 2.42m 1930’s office (vaulted mono pitch ceiling concrete floor) 3.77m x 2.41m Former Boys Toilets 2.85m x 1.8m Former Girls Toilets 2.85m x 1.8m L shaped office 4.03m x 3.45m 1990’s big classroom suspended ceiling 7.64m x 7.63m Staff Toilet 1.8m x 1. 37m

First floor

Landing, three interconnecting rooms Staff Room 4.66m x 3.59m loft hatch to main Victorian roof, can also get to 1930’s roof from here too. Small rooms 4.64m x 1.78m measured together.

Exterior

Secure gates open onto the tarmac playground offering parking and small brick built outbuilding with open fronted shelter. Note: The school playing field and mobile classroom are still owned by Norfolk County Council and have not been acquired. They will, therefore not be included. It is understood that Norfolk County Council will be selling these according to the ten year rule in 2024.

Note

The planning permission pre-condition (condition 5 ref: 3PL/2019/1093/F) has been satisfied, see ref 3DC/2021/0278/DOC. A commencement of works notice was also served last year. Further enquiries can be made through Breckland District Council.

Viewings

Individual viewings can be arranged - the next are Friday 9th September APPOINTMENT ESSENTIAL - please call to arrange the next available slot

Services

Interested parties are requested to make their own enquiries to the relevant authorities as to the availability of services.

Local Authority

Breckland Council

Solicitors

Spire Solicitors LLP (Attleborough), Ref: Protima Sikdar-Wood, Tel: 01603 677082

Important Notice to Prospective Buyers:

We draw your attention to the Special Conditions of Sale within the Legal Pack, referring to other charges in addition to the purchase price which may become payable. Such costs may include Search Fees, reimbursement of Sellers costs and Legal Fees, and Transfer Fees amongst others.

Additional Fees

Buyer's Premium - £960 inc VAT payable on exchange of contracts.

Administration Charge - 0.3% inc VAT of the purchase price, subject to a minimum of £1200 inc VAT, payable on exchange of contracts.

Disbursements - Please see the legal pack for any disbursements listed that may become payable by the purchaser on completion.

View Larger Map

Disclaimer: The map preview provided above is for general guidance only and may not accurately reflect the exact location or surrounding buildings. Prospective buyers and interested parties are strongly advised to independently verify the precise location and surroundings before bidding.