For Sale By Auction | 11:00, 14 September 2022 | Lot 57a

Station House, The Causeway, Stow Bridge, King's Lynn, Norfolk PE34 3PP

Sold £148,000

  • Detached House
  • Tenure: Freehold

Call the team on 01733 889833 for more information

Auction Date

Wed 14/09/2022

Auction Time

11:00

Auction Venue

Livestream Auction

A detached two/three bedroom former railway house in need of renovation throughout.

This former railway house is in need of modernisation and offers two/three reception rooms, kitchen and bathroom with two bedrooms on the first floor. The house is on a good sized plot with vehicular access at the side. It has been extended at the rear with potential for further extensions subject to planning permission. Stowbridge is located between Kings Lynn and Downham Market. The village has a village hall, St Peters Church and the River Great Ouse runs through the village. More extensive facilities can be found at Kings Lynn and Downham Market.

Tenure

Freehold

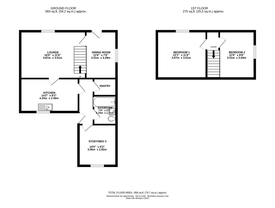
Ground Floor

Lounge, dining room, kitchen, bathroom and study/bedroom three.

First Floor

Two bedrooms

Outside

Garden to rear with vehicular access to the side

Note

The new purchasers will be liable to erect a new boundary on the eastern side (right hand side) as per the stakes positioned by the owner. British Rail have the right to park when needed at the front of the property. More details will be found in the legal pack.

Council Tax Band

A

Energy Efficiency Rating (EPC)

Current Rating G

Services

Interested parties are requested to make their own enquiries to the relevant authorities as to the availability of services.

Local Authority

Kings Lynn and West Norfolk Borough Council

Solicitors

Bindman & Co, Ref: Claire Stanton, Tel: 0191 432 4408

Offered in association with

Morris Armitage

Important Notice to Prospective Buyers:

We draw your attention to the Special Conditions of Sale within the Legal Pack, referring to other charges in addition to the purchase price which may become payable. Such costs may include Search Fees, reimbursement of Sellers costs and Legal Fees, and Transfer Fees amongst others.

Additional Fees

Buyer's Premium - £600 inc VAT payable on exchange of contracts.

Administration Charge - 0.3% inc VAT of the purchase price, subject to a minimum of £1200 inc VAT, payable on exchange of contracts.

Disbursements - Please see the legal pack for any disbursements listed that may become payable by the purchaser on completion.

View Larger Map

Disclaimer: The map preview provided above is for general guidance only and may not accurately reflect the exact location or surrounding buildings. Prospective buyers and interested parties are strongly advised to independently verify the precise location and surroundings before bidding.