For Sale By Auction | 11:00, 26 October 2022 | Lot 66

13 Brewster Road, Boston, Lincolnshire PE21 0DY

Sold £97,000

  • Terraced House
  • 3 Bedrooms
  • Tenure: Freehold

Call the team on 01733 889833 for more information

Auction Date

Wed 26/10/2022

Auction Time

11:00

Auction Venue

Livestream Auction

A three bedroom terraced house in need of renovation and updating.

This three bedroom house offers three double bedrooms, a large reception room and a kitchen. The property is in need of improvement and renovation throughout and has garden to front and rear. Boston is located north of Spalding and offers shopping and recreational facilities together with a rail link into London.

Tenure

Freehold

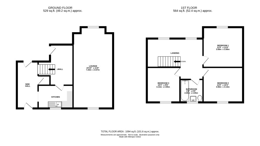
Ground Floor

Hall, cloakroom wc, lounge, side hall and kitchen

First Floor

Three double bedrooms and a bathroom

Outside

Gardens to front and rear

Council Tax Band

A

Energy Efficiency Rating (EPC)

Current Rating E

Services

Interested parties are requested to make their own enquiries to the relevant authorities as to the availability of services.

Local Authority

Boston Borough Council

Solicitors

Walker Morris LLP, 33 Wellington Street, Ref: Walker Morris LLP, Tel: 0113 283 2500

Important Notice to Prospective Buyers:

We draw your attention to the Special Conditions of Sale within the Legal Pack, referring to other charges in addition to the purchase price which may become payable. Such costs may include Search Fees, reimbursement of Sellers costs and Legal Fees, and Transfer Fees amongst others.

Additional Fees

Buyer's Premium - £1140 inc VAT payable on exchange of contracts.

Administration Charge - 0.3% inc VAT of the purchase price, subject to a minimum of £1200 inc VAT, payable on exchange of contracts.

Disbursements - Please see the legal pack for any disbursements listed that may become payable by the purchaser on completion.

View Larger Map

Disclaimer: The map preview provided above is for general guidance only and may not accurately reflect the exact location or surrounding buildings. Prospective buyers and interested parties are strongly advised to independently verify the precise location and surroundings before bidding.