Withdrawn | Lot 31

92 Norburn, Bretton, Peterborough, Cambridgeshire PE3 8NJ

Withdrawn

  • Terraced House
  • 3 Bedrooms
  • Tenure: Freehold

Call the team on 01733 889833 for more information

Auction Date

Wed 26/10/2022

Auction Time

11:00

Auction Venue

Livestream Auction

A three bedroom terraced house with a current rental income of £9,000 pa

This tenanted three bedroom house providing an income of £750 pcm and is fully let. The property has an entrance hall, cloakroom/w.c. and kitchen/diner on the ground floor with three bedrooms and a bathroom on the first floor. Outside provides communal parking area with garden at the rear. Bretton is located on the north west side of Peterborough and offers local shops and the Bretton Centre with its multi purpose entertainment centre. Peterborough city centre offers more extensive facilities together with a main line rail link into London Kings Cross.

Tenure

Freehold

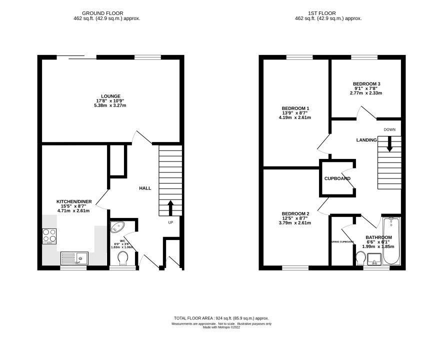
Ground Floor

Hall, cloakroom/w.c., lounge and a kitchen/diner

First floor

Three bedrooms, bathroom

Outside

Communal parking to front and a garden at rear.

Council Tax Band

A

Energy Efficiency Rating (EPC)

Current Rating C

Services

Interested parties are requested to make their own enquiries to the relevant authorities as to the availability of services.

Local Authority

Peterborough City Council

Solicitors

Bindman & Co, Ref: Claire Stanton, Tel: 0191 432 4408

Important Notice to Prospective Buyers:

We draw your attention to the Special Conditions of Sale within the Legal Pack, referring to other charges in addition to the purchase price which may become payable. Such costs may include Search Fees, reimbursement of Sellers costs and Legal Fees, and Transfer Fees amongst others.

Additional Fees

Buyer's Premium - £600 inc VAT payable on exchange of contracts.

Administration Charge - 0.3% inc VAT of the purchase price, subject to a minimum of £1200 inc VAT, payable on exchange of contracts.

Disbursements - Please see the legal pack for any disbursements listed that may become payable by the purchaser on completion.

View Larger Map

Disclaimer: The map preview provided above is for general guidance only and may not accurately reflect the exact location or surrounding buildings. Prospective buyers and interested parties are strongly advised to independently verify the precise location and surroundings before bidding.