Withdrawn | Lot 10

16 Fulcher Avenue, Cromer, Norfolk NR27 9SG

Withdrawn

  • Terraced House
  • 4 Bedrooms
  • Tenure: Freehold

Call the team on 01603 505 100 for more information

Auction Date

Wed 26/10/2022

Auction Time

11:00

Auction Venue

Livestream Auction

An impressive three storey town house ideal for holiday use, investment or family occupation

This highly adaptable and well maintained modern town house has well proportioned accommodation spread over three floors. The property is currently arranged in a four bedroom layout although the rooms could be adapted to provide a fifth bedroom or additional reception space if required. Along with a fully fitted kitchen there is an impressive first floor lounge, dining room and conservatory which opens into a rather attractive split level rear garden. The house also has three bathrooms, an integral garage and utility room. Fulcher Avenue is a quiet no-through road which is within a short walk of the town centre, seafront and railway station and has pedestrian access onto The Heath.

Tenure

Freehold

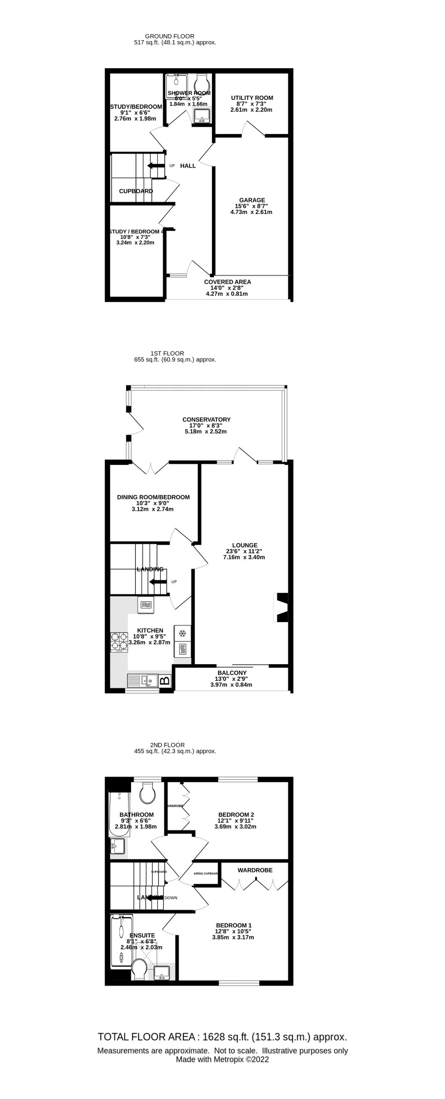
Ground Floor

Hall, bedroom three, study/bedroom four, shower room, utility room, garage.

First Floor

Landing, kitchen, dining room (potential bedroom), lounge, conservatory.

Second Floor

Landing, master bedroom with ensuite bathroom, bedroom two, family bathroom

Outside

Well stocked front garden with driveway to integral garage. Attractive L-Shaped split level rear garden with terraced areas and lawns. Rear pedestrian access.

Council Tax Band

D

Viewings

Open viewings have been arranged and the next are on Wednesday, 19th October. Please call the Norwich office to book an appointment.

Energy Efficiency Rating (EPC)

Current Rating C

Services

Interested parties are requested to make their own enquiries to the relevant authorities as to the availability of services.

Local Authority

North Norfolk District Council

Solicitors

Bindman & Co, Ref: Claire Stanton, Tel: 0191 432 4408

Important Notice to Prospective Buyers:

We draw your attention to the Special Conditions of Sale within the Legal Pack, referring to other charges in addition to the purchase price which may become payable. Such costs may include Search Fees, reimbursement of Sellers costs and Legal Fees, and Transfer Fees amongst others.

Additional Fees

Buyer's Premium - £720 inc VAT payable on exchange of contracts.

Administration Charge - 0.3% inc VAT of the purchase price, subject to a minimum of £1200 inc VAT, payable on exchange of contracts.

Disbursements - Please see the legal pack for any disbursements listed that may become payable by the purchaser on completion.

View Larger Map

Disclaimer: The map preview provided above is for general guidance only and may not accurately reflect the exact location or surrounding buildings. Prospective buyers and interested parties are strongly advised to independently verify the precise location and surroundings before bidding.