For Sale By Auction | 11:00, 26 October 2022 | Lot 68

3 Durhams Road, Dawsmere, Spalding, Lincolnshire PE12 9NJ

Sold £133,000

  • Semi-Detached House
  • 2 Bedrooms
  • Tenure: Freehold

Call the team on 01733 889833 for more information

Auction Date

Wed 26/10/2022

Auction Time

11:00

Auction Venue

Livestream Auction

A semi detached two bedroom cottage in need of some improvement in a rural location with country views to front and rear

This two bedroom cottage known as Beckett Cottage is located 7 miles north of the market town of Long Sutton. The property is offered with vacant possession and offers a rural location on the edge of the hamlet. Long Sutton offers shops and recreational facilities with more extensive facilities found at Wisbech and Kings Lynn. Beckett Cottage offers two reception rooms, a kitchen and W.C with two bedrooms and a bathroom on the first floor. Outside provides parking to front and side and a workshop/garage in the rear garden.

Tenure

Freehold

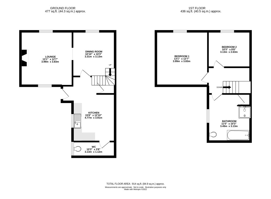
Ground Floor

Lounge, dining room, kitchen, w.c.

First Floor

Two double bedrooms, bathroom

Outside

Parking to front and rear. Garden at rear with a workshop/garage and a timber shed.

Council Tax Band

A

Energy Efficiency Rating (EPC)

Current Rating E

Services

Interested parties are requested to make their own enquiries to the relevant authorities as to the availability of services.

Local Authority

South Holland District Council

Solicitors

Heringtons, Ref: Rupert Parkes, Tel: 01797 222955

Important Notice to Prospective Buyers:

We draw your attention to the Special Conditions of Sale within the Legal Pack, referring to other charges in addition to the purchase price which may become payable. Such costs may include Search Fees, reimbursement of Sellers costs and Legal Fees, and Transfer Fees amongst others.

Additional Fees

Buyer's Premium - £900 inc VAT payable on exchange of contracts.

Administration Charge - 0.3% inc VAT of the purchase price, subject to a minimum of £1200 inc VAT, payable on exchange of contracts.

Disbursements - Please see the legal pack for any disbursements listed that may become payable by the purchaser on completion.

View Larger Map

Disclaimer: The map preview provided above is for general guidance only and may not accurately reflect the exact location or surrounding buildings. Prospective buyers and interested parties are strongly advised to independently verify the precise location and surroundings before bidding.