For Sale By Auction | 11:00, 26 October 2022 | Lot 75

4 Standard Road, Great Yarmouth, Norfolk NR30 2EZ

Sold £105,000

  • Terraced House
  • 2 Bedrooms

Call the team on 01603 505 100 for more information

Auction Date

Wed 26/10/2022

Auction Time

11:00

Auction Venue

Livestream Auction

Mid terrace house with accommodation over three floors close to the sea front requiring improvement

This two bedroom terrace house with attic room was previously let at £130 per week (£6,760 pa) and is now to be sold with vacant possession. The property benefits from gas fired central heating and has double glazing. The house is deceptively spacious with accommodation over three floors and now requires a program of updating to realise its full potential. It is located near Kent Square and close to the beach and town centre, near a comprehensive range of services and amenities. This would appeal to an owner occupier or investor.

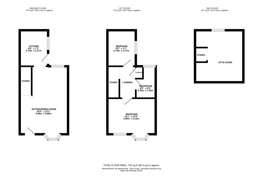
Ground floor

Sitting / dining room, kitchen

First floor

Landing, two bedrooms, bathroom

Second floor

Attic room

Outside

small rear yard

Council Tax Band

A

Viewings

Open viewings are arranged for Friday 25 August. Please call the Norwich office to book an appointment.

Energy Efficiency Rating (EPC)

Current Rating E

Services

Interested parties are requested to make their own enquiries to the relevant authorities as to the availability of services.

Local Authority

Great Yarmouth Borough Council

Solicitors

Boys and Maughan, 99 High Street, Ref: Antonios Michael, Tel: 01843 868861

Important Notice to Prospective Buyers:

We draw your attention to the Special Conditions of Sale within the Legal Pack, referring to other charges in addition to the purchase price which may become payable. Such costs may include Search Fees, reimbursement of Sellers costs and Legal Fees, and Transfer Fees amongst others.

Additional Fees

Buyer's Premium - £600 inc VAT payable on exchange of contracts.

Administration Charge - 0.3% inc VAT of the purchase price, subject to a minimum of £1200 inc VAT, payable on exchange of contracts.

Disbursements - Please see the legal pack for any disbursements listed that may become payable by the purchaser on completion.

View Larger Map

Disclaimer: The map preview provided above is for general guidance only and may not accurately reflect the exact location or surrounding buildings. Prospective buyers and interested parties are strongly advised to independently verify the precise location and surroundings before bidding.