For Sale By Auction | 11:00, 26 October 2022 | Lot 73

80 Garfield Road, Great Yarmouth, Norfolk NR30 4JX

Sold £106,000

  • Terraced House
  • 3 Bedrooms
  • Tenure: Freehold

Call the team on 01603 505 100 for more information

Auction Date

Wed 26/10/2022

Auction Time

11:00

Auction Venue

Livestream Auction

Vacant three bedroom terrace house requiring modernisation

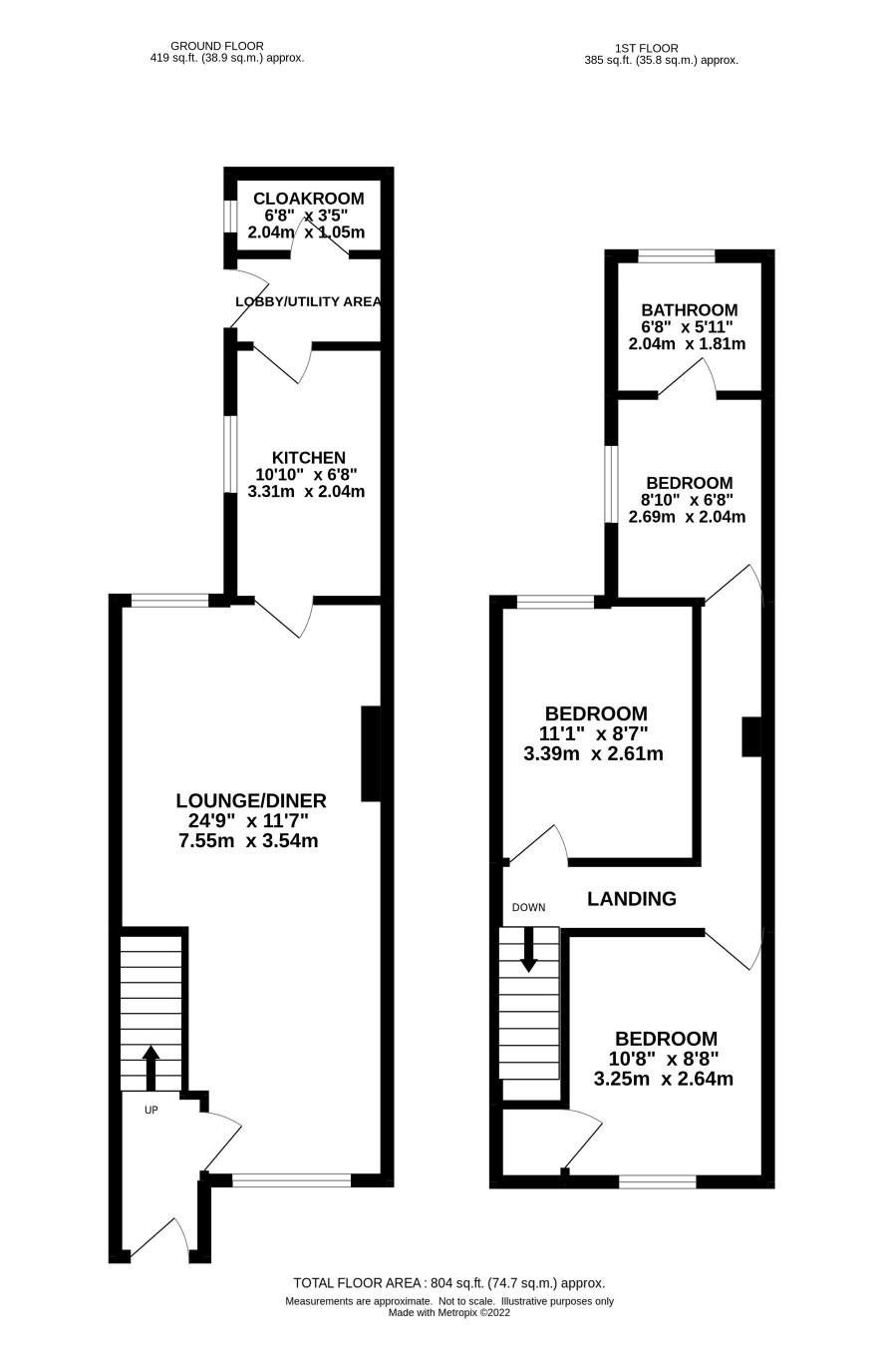
This three bedroom mid terrace house was previously tenanted but now vacant and in need of updating and redecoration. The property benefits from an entrance lobby and through lounge/dining room as well as a kitchen and cloakroom on the ground floor with the three bedrooms and the bathroom on the first floor. The property is double glazed and has gas fired central heating. Garfield Road is located in a popular residential neighbourhood within walking distance of local shops, schools and other community facilities.

Tenure

Freehold

Ground Floor

Entrance lobby, through lounge/diner, kitchen, utility area, cloakroom

First Floor

Landing, three bedrooms, bathroom

Outside

Front garden, rear courtyard style garden.

Council Tax Band

A

Viewing

Open viewings are arranged - the next are Thursday 20 October. APPOINTMENT ESSENTIAL - please call the Norwich office to arrange the next available slot.

Energy Efficiency Rating (EPC)

Current Rating C

Services

Interested parties are requested to make their own enquiries to the relevant authorities as to the availability of services.

Local Authority

Great Yarmouth Borough Council

Solicitors

Bindman & Co, Ref: Claire Stanton, Tel: 0191 432 4408

Important Notice to Prospective Buyers:

We draw your attention to the Special Conditions of Sale within the Legal Pack, referring to other charges in addition to the purchase price which may become payable. Such costs may include Search Fees, reimbursement of Sellers costs and Legal Fees, and Transfer Fees amongst others.

Additional Fees

Administration Charge - 0.3% inc VAT of the purchase price, subject to a minimum of £1200 inc VAT, payable on exchange of contracts.

Disbursements - Please see the legal pack for any disbursements listed that may become payable by the purchaser on completion.

View Larger Map

Disclaimer: The map preview provided above is for general guidance only and may not accurately reflect the exact location or surrounding buildings. Prospective buyers and interested parties are strongly advised to independently verify the precise location and surroundings before bidding.