Postponed | Lot 81

14 Albany Road, Great Yarmouth, Norfolk NR31 0EU

Postponed

  • End of Terrace House
  • Tenure: Freehold

Call the team on 01603 505 100 for more information

Auction Date

Wed 26/10/2022

Auction Time

11:00

Auction Venue

Livestream Auction

Substantial residential property offering great opportunities in the centre of Great Yarmouth.

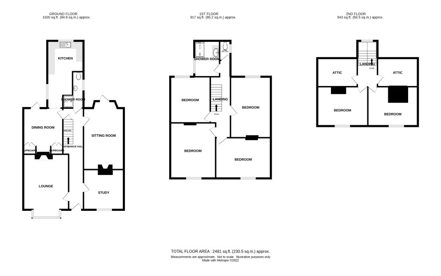
This substantial three storey residential property offers great opportunities subject to necessary planning permission. Offering vast accommodation this property would adapt well to an HMO premise or conversion of three flats. The property has four reception rooms on the ground floor, four bedrooms on the first floor and two bedrooms on the second floor with potential of two further rooms that would require some remedial work to be completed. In need of some updating throughout the potential investment would produce good yields if works were completed. The property also offers a generous back garden with a wide access providing further opportunities for the purchaser to explore.

Tenure

Freehold

Ground floor

Entrance hall, sitting room, drawing room, dining room, kitchen, shower room

First floor

Landing, shower room, separate w.c., four bedrooms

Landing

Two bedrooms and two potential rooms to be completed

Exterior

Small enclosed walled garden leading to front entrance. Gated access to the side leads to a generous rear garden in need of some attention.

Council Tax Band

C

Viewing

Open days have been arranged and the next are on Thursday, 20th October. Please call our Norwich office on 01603 505100 to book a time.

Energy Efficiency Rating (EPC)

Current Rating D

Services

Interested parties are requested to make their own enquiries to the relevant authorities as to the availability of services.

Local Authority

Great Yarmouth Borough Council

Solicitors

England and Co (Great Yarmouth), Ref: Vickie Hurren, Tel: 01493 844308

Important Notice to Prospective Buyers:

We draw your attention to the Special Conditions of Sale within the Legal Pack, referring to other charges in addition to the purchase price which may become payable. Such costs may include Search Fees, reimbursement of Sellers costs and Legal Fees, and Transfer Fees amongst others.

Additional Fees

Buyer's Premium - £960 inc VAT payable on exchange of contracts.

Administration Charge - 0.3% inc VAT of the purchase price, subject to a minimum of £1200 inc VAT, payable on exchange of contracts.

Disbursements - Please see the legal pack for any disbursements listed that may become payable by the purchaser on completion.

View Larger Map

Disclaimer: The map preview provided above is for general guidance only and may not accurately reflect the exact location or surrounding buildings. Prospective buyers and interested parties are strongly advised to independently verify the precise location and surroundings before bidding.