Sold Prior | Lot 40

10, 10a & 10b Market Street, Wisbech, Cambridgeshire PE13 1EX

Sold Prior

  • Mixed Use
  • Tenure: Freehold

Call the team on 01733 889833 for more information

Auction Date

Wed 26/10/2022

Auction Time

11:00

Auction Venue

Livestream Auction

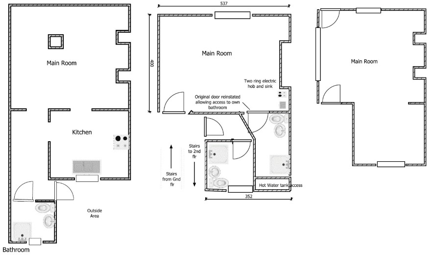
A mixed use investment property comprising retail unit and two studio flats, currently let producing £16,400 pa.

This Grade II Listed property is conveniently located on Market Street, just off the Market Place in the Georgian market town of Wisbech. On the ground floor there is a retail unit, currently let, producing £6,000 pa (£500 pcm). There is a basement with access to the rear courtyard. The first floor studio is currently let, producing £5,200 pa (£100 p/w) and a second floor room, currently let, producing £5,200 pa (£100 p/w). The landlord is responsible for all bills except council tax.

Tenure

Freehold

Accommodation

Ground floor retail unit, basement, first and second floor studios and rear courtyard.

Council Tax Band

A

Energy Efficiency Rating (EPC)

Current Rating 10 = C, 10a = C, 10b = TBC

Services

Interested parties are requested to make their own enquiries to the relevant authorities as to the availability of services.

Local Authority

Fenland District Council

Solicitors

Bindman & Co, Ref: Claire Stanton, Tel: 0191 432 4408

Offered in association with

Valiant Properties

Important Notice to Prospective Buyers:

We draw your attention to the Special Conditions of Sale within the Legal Pack, referring to other charges in addition to the purchase price which may become payable. Such costs may include Search Fees, reimbursement of Sellers costs and Legal Fees, and Transfer Fees amongst others.

Additional Fees

Buyer's Premium - £600 inc VAT payable on exchange of contracts.

Administration Charge - 0.3% inc VAT of the purchase price, subject to a minimum of £1200 inc VAT, payable on exchange of contracts.

Disbursements - Please see the legal pack for any disbursements listed that may become payable by the purchaser on completion.

View Larger Map

Disclaimer: The map preview provided above is for general guidance only and may not accurately reflect the exact location or surrounding buildings. Prospective buyers and interested parties are strongly advised to independently verify the precise location and surroundings before bidding.