Postponed | Lot 29

23 Stokebridge Maltings, Dock Street, Ipswich, Suffolk IP2 8EU

Postponed

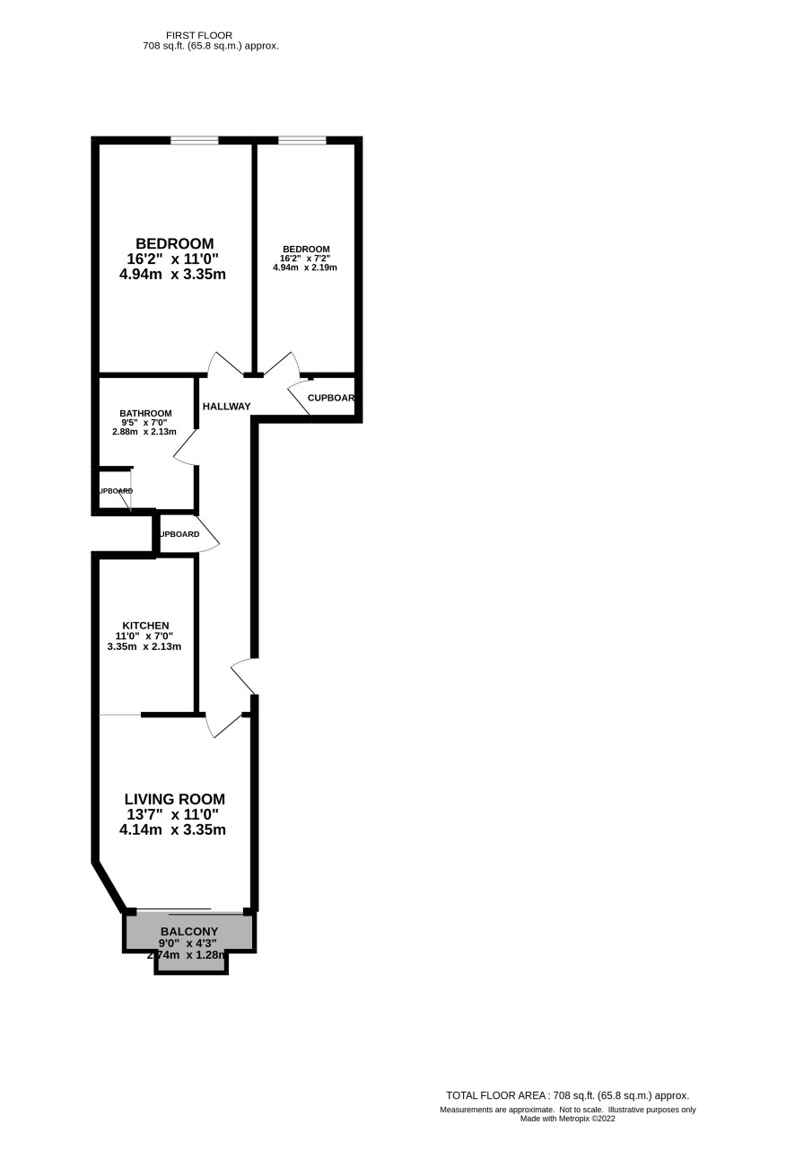
  • Flat
  • 2 Bedrooms
  • Tenure: Leasehold

Call the team on 01473 558 888 for more information

Auction Date

Wed 26/10/2022

Auction Time

11:00

Auction Venue

Livestream Auction

A well proportioned first floor flat in an attractive waterfront location

Situated a short distance from the town centre and railway station is this first floor flat forming part of a maltings conversion. The property offers two bedroom characterful accommodation with exposed heavy timbers and features a balcony overlooking the river and an allocated parking space. Whilst it would benefit from some cosmetic enhancement, the property represents a particularly well priced opportunity for an investor or owner occupier.

Tenure

Leasehold

Leasehold Information

Term: From 20 June 1985 to 10 September 2086 (64 years remaining) Annual ground rent amount: £120 Ground rent review period: June 2023 Annual service charge amount: £2,275 Service charge review period: June 2023

Council Tax

Band B

Energy Efficiency Rating (EPC)

Current Rating C

Services

Interested parties are requested to make their own enquiries to the relevant authorities as to the availability of services.

Local Authority

Ipswich Borough Council

Solicitors

Shoredons & Co Legal, Ref: Emma Barnard, Tel: 07468 878012

Important Notice to Prospective Buyers:

We draw your attention to the Special Conditions of Sale within the Legal Pack, referring to other charges in addition to the purchase price which may become payable. Such costs may include Search Fees, reimbursement of Sellers costs and Legal Fees, and Transfer Fees amongst others.

Additional Fees

Buyer's Premium - 1.2% inc VAT of the purchase price, payable on exchange of contracts.

Administration Charge - 0.3% inc VAT of the purchase price, subject to a minimum of £1200 inc VAT, payable on exchange of contracts.

Disbursements - Please see the legal pack for any disbursements listed that may become payable by the purchaser on completion.

View Larger Map

Disclaimer: The map preview provided above is for general guidance only and may not accurately reflect the exact location or surrounding buildings. Prospective buyers and interested parties are strongly advised to independently verify the precise location and surroundings before bidding.