Postponed | Lot 58

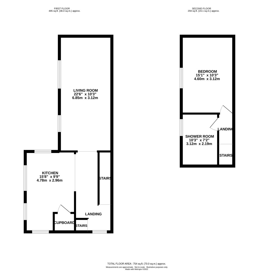
First & Second Floor Maisonette, Tudor House, 13 East Stockwell Street, Colchester, Essex CO1 1SS

Postponed

  • Maisonette
  • Tenure: Leasehold

Call the team on 01473 558 888 for more information

Auction Date

Wed 26/10/2022

Auction Time

11:00

Auction Venue

Livestream Auction

A stunning duplex maisonette in the heart of the town centre.

A fantastic opportunity to acquire this spacious fully refurbished duplex maisonette situated in the town's historic 'Dutch Quarter'. The property forms part of Tudor House which is a Grade II Listed property dating back to the early 19th Century. The tasteful modernisation programme undertaken makes it ready for immediate occupation and includes a fully fitted kitchen with built-in appliances, gas central heating, inset spotlights, new floor coverings and full re-decoration. Located in a highly desirable area and being a tremendous buy-to-let prospect we believe this to be a Lot not to be missed.

Tenure

Leasehold

Leasehold Information

Term: 99 years from January 2013 (approximately 89 years remaining) Annual ground rent amount: Peppercorn Annual service charge amount: £900.00 Service charge review period: December each year

Council Tax Band

C

Viewing

Open Viewing has been scheduled for Mon 10th, Fri 14th and Wed 19th October. BOOKING AN APPOINTMENT IS ESSENTIAL. Please contact our Ipswich office to be allocated the next available slot on your preferred day.

Energy Efficiency Rating (EPC)

Current Rating Please refer to legal pack

Services

Interested parties are requested to make their own enquiries to the relevant authorities as to the availability of services.

Local Authority

Colchester Borough Council

Solicitors

Kew Law (Colchester), Ref: Simon Ford, Tel: 01206 564546

Important Notice to Prospective Buyers:

We draw your attention to the Special Conditions of Sale within the Legal Pack, referring to other charges in addition to the purchase price which may become payable. Such costs may include Search Fees, reimbursement of Sellers costs and Legal Fees, and Transfer Fees amongst others.

Additional Fees

Buyer's Premium - £900 inc VAT payable on exchange of contracts.

Administration Charge - 0.3% inc VAT of the purchase price, subject to a minimum of £1200 inc VAT, payable on exchange of contracts.

Disbursements - Please see the legal pack for any disbursements listed that may become payable by the purchaser on completion.

View Larger Map

Disclaimer: The map preview provided above is for general guidance only and may not accurately reflect the exact location or surrounding buildings. Prospective buyers and interested parties are strongly advised to independently verify the precise location and surroundings before bidding.