For Sale By Auction | 11:00, 26 October 2022 | Lot 62

41-43 St. Augustines Street, Norwich, Norfolk NR3 3BY

Sold £322,000

  • Residential Development
  • Tenure: Freehold

Call the team on 01603 505 100 for more information

Auction Date

Wed 26/10/2022

Auction Time

11:00

Auction Venue

Livestream Auction

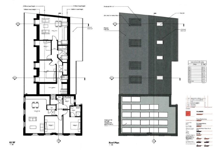
A prominent commercial building, formally a large retail premises, now with planning permission for 9 flats and 1 retail unit.

This two storey corner property traded for may years as Barkshire cycles and more recently as a shop and storage, however planning permission was granted in October 2021 for the replacement of the existing building with 9 flats and a retail unit. The building could have many other alternative uses or as a highly valuable redevelopment opportunity for resale or investment. The proposed configuration would provide for 6 one bedroom flats and 3 two bedroom flats plus a ground floor retail unit. Full plans and details can be fopund on Norwich City Councils planning portal Ref. 21/01054/F. St Augustine's Street lays to the North of Norwich centre close to a wide range of shops and near the Anglia Square redevelopment zone.

Tenure

Freehold

Existing Accommodation

The current arrangement includes a retail unit and workshop on the ground floor with offices and storage on the first floor. In total 473 square meters (5091 Square feet).

Planning

Norwich City Council granted planning permission on 18th October 2021 for replacement of the existing building with 9 flats and a retail unit Ref 21/01054/F.

Business Rates

Current Ratable value £19,250.

Viewing

Open days have been arranged and the next are Monday, 17 October. Please call our office on 01603 505100 to book an appointment.

Services

Interested parties are requested to make their own enquiries to the relevant authorities as to the availability of services.

Local Authority

Norwich City Council

Solicitors

Ward Gethin Archer (Dereham), Ref: Tracy Guest, Tel: 01362 692182

Important Notice to Prospective Buyers:

We draw your attention to the Special Conditions of Sale within the Legal Pack, referring to other charges in addition to the purchase price which may become payable. Such costs may include Search Fees, reimbursement of Sellers costs and Legal Fees, and Transfer Fees amongst others.

Additional Fees

Buyer's Premium - £600 inc VAT payable on exchange of contracts.

Administration Charge - 0.3% inc VAT of the purchase price, subject to a minimum of £1200 inc VAT, payable on exchange of contracts.

Disbursements - Please see the legal pack for any disbursements listed that may become payable by the purchaser on completion.

View Larger Map

Disclaimer: The map preview provided above is for general guidance only and may not accurately reflect the exact location or surrounding buildings. Prospective buyers and interested parties are strongly advised to independently verify the precise location and surroundings before bidding.