Sold Prior | Lot 19

The Golden Lantern & Flat, 2-4 Dereham Road, Watton, Norfolk IP25 6ER

Sold Prior

  • Mixed Use
  • 5 Bedrooms
  • Tenure: Freehold

Call the team on 01603 505 100 for more information

Auction Date

Wed 08/02/2023

Auction Time

11:00

Auction Venue

Livestream Auction

Mixed use premises with A3 use takeaway formerly a Chinese restaurant with spacious flat above producing an income of £15,600 pa.

This mixed use premise is currently leased on a year lease for a further 10 years producing £15,600 pa. The former Chinese restaurant has A3 takeaway use and is currently used for storage by the tenants, who also lease an extensive first floor flat offering five generous bedrooms. This lot also includes the FREEHOLD to 18 High Street the buyer will be required to grant a 999 year lease back of the shop at a peppercorn rent with no obligation to contribute to maintenance/insurance. This is an investment opportunity with great potential.

Tenure

Freehold

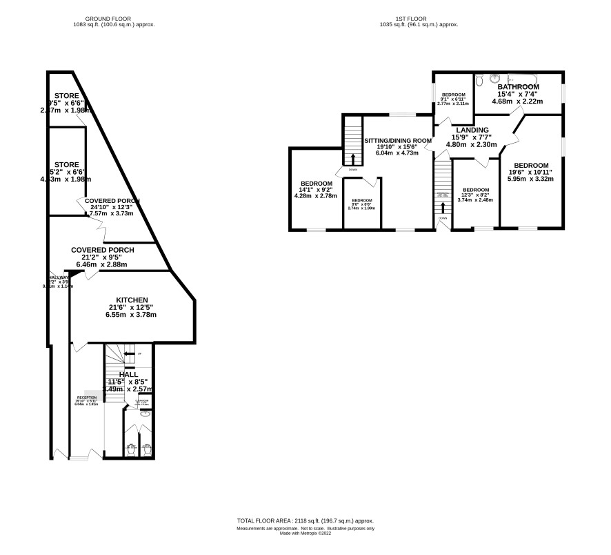
Ground floor

Takeaway reception, kitchen, front access corridor, staff toilet facilities.

First floor

Entrance hall providing stairs to first floor landing, three bedrooms, bathroom, lounge with a further two bedrooms, stairs to staff toilets.

Exterior

Covered storage/cleaning facilities providing three locked rooms for freezers and produce

NOTE

This lot also includes the FREEHOLD to 18 High Street the buyer will be required to grant a 999 year lease back of the shop at a peppercorn rent with no obligation to contribute to maintainance/insurance.

Viewings

Open viewings have been arranged in conjunction with the tenants. To book an appointment please call the Norwich office.

Council Tax

Band A

Energy Efficiency Rating (EPC)

Current Rating E for takeaway. Flat F

Services

Interested parties are requested to make their own enquiries to the relevant authorities as to the availability of services.

Local Authority

Breckland Council

Solicitors

Ward Gethin Archer (Dereham), Ref: Tracy Guest, Tel: 01362 852918

Offered in association with

Sowerbys (Dereham)

Important Notice to Prospective Buyers:

We draw your attention to the Special Conditions of Sale within the Legal Pack, referring to other charges in addition to the purchase price which may become payable. Such costs may include Search Fees, reimbursement of Sellers costs and Legal Fees, and Transfer Fees amongst others.

Additional Fees

Buyer's Premium - £960 inc VAT payable on exchange of contracts.

Administration Charge - 0.3% inc VAT of the purchase price, subject to a minimum of £1200 inc VAT, payable on exchange of contracts.

Disbursements - Please see the legal pack for any disbursements listed that may become payable by the purchaser on completion.

View Larger Map

Disclaimer: The map preview provided above is for general guidance only and may not accurately reflect the exact location or surrounding buildings. Prospective buyers and interested parties are strongly advised to independently verify the precise location and surroundings before bidding.