Withdrawn | Lot 62

14 High Street, Spalding, Lincolnshire PE11 1TW

Withdrawn

  • House (unspecified)
  • Tenure: Freehold

Call the team on 01733 889833 for more information

Auction Date

Wed 08/02/2023

Auction Time

11:00

Auction Venue

Livestream Auction

A Grade II listed Georgian house in the centre of Spalding overlooking the river Welland with a potential income of £46,416.

This Georgian house is separated into two flats and four letting rooms with the two flats and three of the rooms fully let. The property retains most of the period features and could also provide a single residence with views to the front over the river Welland. The accommodation is comprised of two one-bedroom flats and four letting rooms, two with en-suite shower rooms, kitchen and a communal bathroom. Outside to the rear, the flat has a terrace with two parking spaces to the side. Spalding is a market town situated between Peterborough and Boston with shopping and recreational facilities and a rail link.

Tenure

Freehold

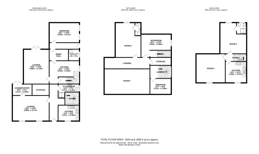
Ground Floor

Flat 1: Hall, lounge, kitchen, shower room and a conservatory. Flat 2: Hall, kitchen, shower room, lounge and bedroom.

First Floor

Flat 1: Landing and bedroom. Letting Room 1, Letting Room 2 with en-suite shower, landing and communal bathroom.

Second Floor

Letting Room 3, kitchen and Letting Room 4 with en-suite shower room.

Outside

Garden to front with river frontage, two parking spaces to side and a terraced garden to rear.

Council Tax Band

E

Energy Efficiency Rating (EPC)

Current Rating E

Services

Interested parties are requested to make their own enquiries to the relevant authorities as to the availability of services.

Local Authority

South Holland District Council

Solicitors

Maples, Ref: James Turner, Tel: 01775 722261

Offered in association with

Sedge Homes

Important Notice to Prospective Buyers:

We draw your attention to the Special Conditions of Sale within the Legal Pack, referring to other charges in addition to the purchase price which may become payable. Such costs may include Search Fees, reimbursement of Sellers costs and Legal Fees, and Transfer Fees amongst others.

Additional Fees

Buyer's Premium - £600 inc VAT payable on exchange of contracts.

Administration Charge - 0.3% inc VAT of the purchase price, subject to a minimum of £1200 inc VAT, payable on exchange of contracts.

Disbursements - Please see the legal pack for any disbursements listed that may become payable by the purchaser on completion.

View Larger Map

Disclaimer: The map preview provided above is for general guidance only and may not accurately reflect the exact location or surrounding buildings. Prospective buyers and interested parties are strongly advised to independently verify the precise location and surroundings before bidding.