Sold Prior | Lot 76

22 Victoria Street, Great Yarmouth, Norfolk NR30 4JE

Sold Prior

  • Terraced House
  • 2 Bedrooms
  • Tenure: Freehold

Call the team on 01603 505 100 for more information

Auction Date

Wed 08/02/2023

Auction Time

11:00

Auction Venue

Livestream Auction

Victorian terraced requiring some improvements situated to the north of the popular seaside resort of Gt Yarmouth

This Victorian terrace has, until recently, been a buy to let property. Now vacant this mid terraced property is requiring some improvements and would be an ideal investment property once improved. The property has recently had a damp proof installed to the sitting room and dining room, hence fresh plaster and paint. Potential rental income of £650pcm.

Tenure

Freehold

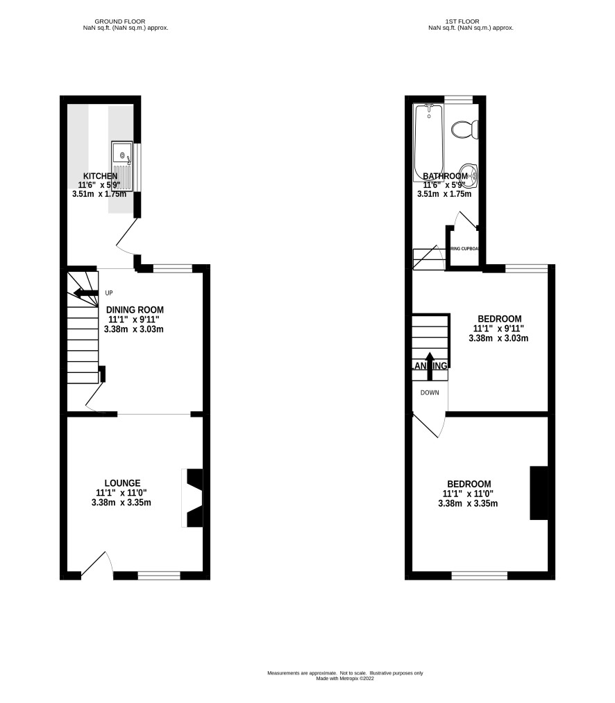
Ground Floor

Open plan living/dining area, kitchen

First Floor

Landing, two bedrooms with one having a bathroom leading of the rear

Outside

Small walled garden providing access to the front. Access to the rear leads to a small courtyard.

Council Tax Band

A

Viewings

Viewings are being arranged and the next is on Wednesday 11 January. Please contact the Norwich office to book an appointment 01603 505100

Energy Efficiency Rating (EPC)

Current Rating E

Services

Interested parties are requested to make their own enquiries to the relevant authorities as to the availability of services.

Local Authority

Great Yarmouth Borough Council

Solicitors

Ward Gethin Archer (Dereham), Ref: Tracy Guest, Tel: 01362 852918

Offered in association with

Aldreds

Important Notice to Prospective Buyers:

We draw your attention to the Special Conditions of Sale within the Legal Pack, referring to other charges in addition to the purchase price which may become payable. Such costs may include Search Fees, reimbursement of Sellers costs and Legal Fees, and Transfer Fees amongst others.

Additional Fees

Buyer's Premium - £960 inc VAT payable on exchange of contracts.

Administration Charge - 0.3% inc VAT of the purchase price, subject to a minimum of £1200 inc VAT, payable on exchange of contracts.

Disbursements - Please see the legal pack for any disbursements listed that may become payable by the purchaser on completion.

View Larger Map

Disclaimer: The map preview provided above is for general guidance only and may not accurately reflect the exact location or surrounding buildings. Prospective buyers and interested parties are strongly advised to independently verify the precise location and surroundings before bidding.